Главная Юзердоски Каталог Трекер NSFW Настройки

Домострой

Ответить в тред Ответить в тред
Check this out!
<<
Назад | Вниз | Каталог | Обновить | Автообновление | 65 19 36
Сап, поясните за жизнь в таунхаусе. Сейчас стоит Аноним 10/07/22 Вск 23:47:23 259820 1
eaa5abd0-0090-1[...].jpg 147Кб, 654x368
654x368
f6471e60-0090-1[...].jpg 268Кб, 1063x710
1063x710
fa884a80-0090-1[...].jpg 50Кб, 580x440
580x440
004c6d20-0091-1[...].jpg 93Кб, 424x283
424x283
Сап, поясните за жизнь в таунхаусе.

Сейчас стоит выбор между покупкой частного дома и таунхауса. У обоих есть по своему личному участку, но у таунхауса он поменьше. Рассматриваемый мною таунхаус находится ближе к городу, чем коттедж по +- аналогичной стоимости. Также понравилась планировка в таунхаусе, будто под меня сделали.
В общем пока думаю взять все же таунхаус, но есть куча потенциальных подводных камней, которые пугают.
Могут ли возникнуть какие-нибудь возможноные непонятки с формой собственности на таунхаус (вроде на ее привели в правовое поле и узаконили)? Как нужно будет решать вопросы с соседом если нужно что-то отремонтировать в доме?
В тред приглашаются владельцы подобных форм собственности.
Аноним 10/07/22 Вск 23:54:25 259821 2
1624227664198.jpg 685Кб, 2048x1536
2048x1536
Аноним 11/07/22 Пнд 00:53:05 259823 3
Это скорее всего будет оформлено как квартира в доме. Общее имущество содержишь исходя из своей доли. Но коммуникации у вас раздельные скорее всего, общие только стены и крыша. Из подводных это наличие соседей рядом и слышимость через стенку, меньше приватности на участке. А так, с учётом близости к городу, норм тема. Главное ещё чтобы посёлок и ук в нем были адекватные.
Аноним 11/07/22 Пнд 09:09:48 259834 4
>>259820 (OP)
Родители живут в таунхаусе. Собственность - квартира в доме. О чем ты с соседом договариваться то собрался? Ты стену между вами снести хочешь что ли? Вода, газ и электричество у тебя отдельно заведены.
Аноним 11/07/22 Пнд 22:40:02 259876 5
>>259823
>>259834
Спасибо. От знакомых слышал про случаи, что если навернется крыша или что-то будет с канализацией в подвале то при отсутствии нормальной УК будет геммор с решением проблемы.
Аноним 12/07/22 Втр 09:53:31 259892 6
Таунхаусодебилы, в чем смысл жизни в таунхаусе? Жить с незнакомым человеком за стенкой, вдвоем на весь дом, да ну нахуй, это ж по-пидорски. Это как купить частный дом, но без плюсов частного дома.
Аноним 12/07/22 Втр 11:46:25 259896 7
16365436582-na-[...].jpg 796Кб, 1240x827
1240x827
Моё раннее детство прошло в таком вот таунхаусе
Аноним 12/07/22 Втр 14:30:09 259908 8
>>259892
Намного дешевле, чем покупать частный дом. Нет ебанного двухметрового забора как в ГУЛАГе. Таунхаусы ближе к городу. В таунхаусы чаще проводят канализацию за счёт более кучного расположения квартир плюс сама стоимость коммуналки дешевле, чем в частном доме. Есть свой участок, как в частном доме.
Не вижу проблем жить с другим человеком за стенкой, в современных домах нормальная звукоизоляция.
Аноним 12/07/22 Втр 14:30:42 259909 9
>>259896
А Российская Империя знала толк
Аноним 12/07/22 Втр 14:57:02 259913 10
Аноним 12/07/22 Втр 17:22:36 259927 11
>>259909
это советское изобретение. Российская империя это квариры в центре питера - доходные дома
Аноним 12/07/22 Втр 17:42:53 259930 12
image.png 446Кб, 686x451
686x451
>>259927
>Российская империя это квариры в центре питера - доходные дома
Да что вы говорите
Аноним 24/11/23 Птн 01:00:09 301082 13
Аноним 16/03/24 Суб 01:29:56 312098 14
>>259892
Таунхаус в зелёной части города, будет стоить сильно дешевле чем частный дом (особняк) в этой же зелёной части города.
Аноним 16/03/24 Суб 07:05:13 312101 15
>>259820 (OP)
Неудобства частного дома + ебанаты соседи за стенкой. Найс идея конечно, что за еблан это придумал
Аноним 16/03/24 Суб 07:06:20 312102 16
>>259820 (OP)
Вижу смысл только в таунхаусе если во второй половине мамка живет например, либо наебыша с женой пидорнуть туда
Аноним 16/03/24 Суб 09:07:26 312106 17
>>259908
у меня в городе таунхаус идет от 8 до 15млн, при этом можно взять ахуенно всратый домик за 5кк в черте отрода
Аноним 16/03/24 Суб 10:32:55 312107 18
>>259820 (OP)
Находил таунхаус с 3 долями. Есть общий проход, но доли распределены так, что дорога пролегает по доли соседа. И парковка вроде тоже общая, но на доли второго соседа. Еще коллектор с каналией на предлагаемом участке тоже не айс. И таких подводных много. Такой же вопрос к подъезду к дому, кому она принадлежит? Кто ее будет зимой чистить? Кому принадлежат коммуникации?

Да и в целом, с количеством и качеством таунов все печально. Проще реально взять участок, снести старую халупу, построить терем и подвести коммуникации\интернет. Обслуживание прилегающей территории на государстве, а ты сам себе хозяин.
Аноним 16/03/24 Суб 10:44:17 312108 19
>>259908
>Таунхаусы ближе к городу
Лол, в России их строят далеко от города, так как ценник за землю ниже. Рядом с ДС ничего путного за ценник 15кк не нашел. Везде +10 км езды до мкад и удаленность от ЖД. И это все за голые стены.
>Намного дешевле, чем покупать частный дом.
Тут спорно. Локация важна. Что и как там тебе настроил застройщик тоже большой вопрос.
>Нет двухметрового забора как в ГУЛАГе
Это наоборот плюс, не видишь и не слышишь соседей. Можно живую изгородь заказать и твой участок будет напоминать лес. А что ты будешь делать на участке 5 на 5 метров?
>в современных домах нормальная звукоизоляция
Если ее туда заложили

Может быть лет через 5-10 появится направление или еще что. Сейчас все очень грустно с этой темой.
Аноним 16/03/24 Суб 11:27:06 312111 20
>>312108
>ол, в России их строят далеко от города, так как ценник за землю ниже
Что за пиздеж? В подДС (Долгопрудный) Таунхаусы стоят прямо в центре города.
Аноним 16/03/24 Суб 16:51:12 312131 21
>>312111
>Таунхаусы стоят прямо в центре города Долгопрудный.
Лол, за 40 лямов? Я писал ответ на тезис о том, что тауны доступнее дома. Так то ты и ДС можешь найти тауны за схожий ценник.
Аноним 16/03/24 Суб 16:53:51 312132 22
LOL.PNG 1120Кб, 1838x989
1838x989
Аноним 17/03/24 Вск 08:45:02 312203 23
>>312131
Ты писал, что они не строятся, хотя по факту строятся. Кто тебе мешал их купить тогда, когда они только сдавались? Все, теперь страдай и выбирай какой-нибудь рафинад или Катуар.
Аноним 17/03/24 Вск 09:52:24 312212 24
>>312107
Всё это интересно, но сейчас требования к постройкам ужесточаются. Поэтому есть вероятность, что даже реконструкцию не разрешат сделать, не говоря о сносе и строительстве нового дома.

Если конкретнее, то сейчас нарезали кучу ограничительных зон, и воткнуть постройку на своих сотках стало непросто. К старым строениям эти ограничения пока не применяют, а к реконструкции/новострою - уже да. Да, дачная амнистия вроде как позволяет зарегистрировать постройку в упрощённом порядке, но могут и отказ влепить, если выявят грубые нарушения при застройке. А самострои у нас сносят без сантиментов, ещё и счёт за снос выставят.

В общем, без ГПЗУ на участок лучше и не чесаться. И даже если там нет запретов, нет гарантий, что потом хлопот не будет. На форумхаусе по этому поводу боль пострадавших можно почитать: как получили наследство, снесли дедушкин дом, а новый построить в том же пятне застройки нельзя.
Аноним 17/03/24 Вск 11:46:20 312232 25
>>312203
>Ты писал, что они не строятся, хотя по факту строятся. Кто тебе мешал их купить тогда, когда они только сдавались?
Давай еще обсудим че бы твой батя не затарился хатами в центре ДС в начале 90-х?
Аноним 17/03/24 Вск 11:53:18 312235 26
>>312212
>дедушкин дом, а новый построить в том же пятне застройки нельзя.
Лол, потому что делили частки "интересным" способом: один участок с узким проходом в дальнюю часть, второй небольшой рядом с дорогой и с широким подъездом для авто. В под ДС такого дофига и больше, достаточно открыть карту межевания. Даже пытаются продавать это все и ломят дикий ценник.

>В общем, без ГПЗУ на участок лучше и не чесаться.
Если участок равносторонний и больше 6 соток, то можно и почесаться. 3 метра от границ и все дела. Не ппц сложные правила.
Аноним 17/03/24 Вск 12:37:06 312239 27
Слоник.mp4 250Кб, 640x360, 00:00:06
640x360
Аноним 17/03/24 Вск 17:59:35 312267 28
>>312235
https://rgis.mosreg.ru/v3/#/
Ну вот например применительно к Подмосковью: стоит включить слои и букет ограничений внезапно появляется. И от каждого мудацкого ведомства может понадобиться отписка, что можно строится, всё норм. А иначе может оказаться, что под застройкой археологически важное подземелье, или самолётам дом летать мешает, или газовщики трубу магистральную запланировали давно, вдоль участка, и отступ от неё не менее 25 метров.
Аноним 25/05/24 Суб 22:51:50 319602 29
>>259908
> Нет ебанного двухметрового забора как в ГУЛАГе.
Ясно. Каргокультистская скотопидарашка детектед
Аноним 03/09/25 Срд 05:27:51 372956 30
>>259820 (OP)
Коротко:
0. У нас это называется "домблок в блокированной застройке".
1. Компромиссы, компромиссы. А и да, ещё компромиссы.
2. Выигрывают коммерсы.
3. В РФ почти нет того, что действительно называется "таунхас" и делается правильно. Кстати, на ОП-пиках только 1 это точно правильный наунхаус, а 3 и 4 -- точно неправильный (но подходят на роль дома в блокированной застройке).
>>259821
Тут тоже неправильный.

Вот тут разбиралось по полочкам:
https://dzen.ru/video/watch/6706289c36ccdf3a4cca49b7
Аноним 03/09/25 Срд 06:06:22 372958 31
>>312235
>3 метра от границ и все дела. Не ппц сложные правила.
Не только. Могут быть и всякие другие прелести. Например, между двумя деревянными строениями должно быть то ли 12, то ли 18 метров. ОЙ. Если у соседа каркасник прижат с твоей стороны на 3 м от границы, то тебе от той же границы отступить надо уже 9м. А могут быть и другие ограничения: ЛЭПы с их приколами (у меня так по краю участка пару метров отъедает), мусорки с огромным противопожарным пятном, зоны у воды, культурные и прочее ограничения.

Я когда курил натыкался на рассказ про чувака, у которого под участком через самую его середину оказался проложен подземный кабель с охранкой по 3м в каждую сторону. Сплавить землю не смог, пришлось строиться в неудобном углу.

Так что всегда перед покупкой получаем ГПЗУ. Впрочем, в первом приближении по ПКК можно почти всё увидеть.
Например, открываем
https://nspd.gov.ru/map
Включаем "участки из ЕГРН" и всё из папки ЗОУИТ (кроме последнего "иные ...")
И находим участок, например: 40:13:130605:263
Это не мой, это просто пример. Казалось бы 15 соток... Но 60% перекрыто охранкой ЛЭП на 10кВ, от оставшейся территории отщёлкиваем 3м от заборов и остаётся что-то совсем нелепое, куда можно воткнуть беседку, но не дом.
Или неподалёку, например, 40:13:130605:115 ... Вроде, ничего особого, но почти весь участок перекрыт культурным ограничением явно указано:
> В границе защитной зоны объекта культурного наследия запрещается строительство объектов капитального строительства и их реконструкция, связанная с изменением их параметров (высоты, количества этажей, площади), за исключением строительства и реконструкции линейных объектов.
Или вот ещё: 40:13:120328:17
Продавец с удовольствием заломит за потолок ведь это так красиво у воды... Но помимо мошкары тыхапаешь весь участок в водоохранной зоне (таких вдоль рек дофига) и две трети ещё и прибрежной.

И это встречается чаще, чем тебе бы хотелось.
Аноним 03/09/25 Срд 06:18:56 372959 32
image.png 377Кб, 817x733
817x733
>>372958
Вообще когда на пик смотришь -- можно обоссаться со смеху от понимания, что некоторые играют в лотерею, не зная правил.
Аноним 03/09/25 Срд 12:04:58 372977 33
>>259820 (OP)
Частный дом, офк. Заезжает в твой даунхаус бухающая семейка с 3 личинусами, ЗА ХОРОДОМ ЖЫЖ ЖЫВЕМ!!1
Аноним 03/09/25 Срд 12:06:18 372978 34
>>259908
>>312098
>дешевле
>дешевле
Не задумались, почему?
Аноним 03/09/25 Срд 12:08:45 372980 35
>>372958
Поверь, в 95% всем похуй на эти писюльки и маняфантазии на ПКК
Аноним 04/09/25 Чтв 05:06:00 373037 36
>>312108
> >Таунхаусы ближе к городу
> Лол, в России их строят далеко от города, так как ценник за землю ниже. Рядом с ДС ничего путного за ценник 15кк не нашел. Везде +10 км езды до мкад и удаленность от ЖД. И это все за голые стены.
У нас наоборот все таунхаус в находятся в 0.5-1км от города, а частные дома с аналогичной стоимости в десяти километрах дальше.
Аноним 04/09/25 Чтв 08:43:26 373041 37
>>373037
Забей, это местный шиз, который никогда ничего не покупал и не купит, зато во всем разбирается.
Аноним 05/09/25 Птн 12:55:07 373160 38
>>372980
>в 95% всем похуй
Ну-ну. На что именно? Вот, например, красные линии: да, пока ты не попробуешь поставить на учёт (хотя иногда это нужно) строение, которое не отстоит от границы участка на 3м вряд ли кто-то придёт к тебе с рулеткой. НО! Если ты повздоришь с соседом, то он легко может тебя вломить, приедет комиссия и прикажет снести.
Культурные ограничения отлавливаются на раз любой комиссией, которые регулярно посещают объекты культуры. И по их жалобе тоже придёт распоряжение. То, что на пике во втором посте -- это электричество. Там стоят столбы с проводами, время от времени их обслуживают. И это значит, что приходят чуваки и если они не смогут пройти напрямую от столба до столба, значит у них появится основание кинуть информацию куда следует, так что снова есть все шансы. А если это не просто линия, а ЛЭП на 10+кВ, то у них есть понимание, что место между такими столбами должно быть чистым по 6м в каждую сторону и это не просто так, это потому, что они знают, что будет если такой провод в штормом оборвёт и кинет на забор, кусты или дерево и чем всё это кончится.
Вот в водоохранке, особенно по мелким речушкам, наверное, относительно безопасно... Но это пока, скажем, федеральное агентство водных ресурсов не начнёт запускать дроны для контроля, а в отличии от остальных их ограничения имеют обратную силу.

И надо понимать: гайки будут закручивать, а контроль -- усиливать, так что патрульные дроны и постановления на основании аэрофотосъёмки скоро станут нормой и как Москвичи научились благодаря камерам ездить по правилам, так и вся страна рано или поздно научится по правилам строиться.
Аноним 05/09/25 Птн 12:59:42 373162 39
>>312132
Тауны на Лаврентьева - хлам, нормальные только первая и вторая линия на Новом бульваре, но там очень редко продают
Аноним 05/09/25 Птн 19:43:37 373170 40
>>372956
> Вот тут разбиралось по полочкам:
Снесли релевантную ссылку... Тут вообще нельзя ни на что ссылаться или просто кому-то моча в голову ударила?
Или есть правила: на это можно, а на то -- нельзя? Тогда где почитать?
Аноним 08/09/25 Пнд 16:16:41 373271 41
Аноним 08/09/25 Пнд 16:33:09 373272 42
>>259820 (OP)
Минусы квартиры + минусы дома
Аноним 09/09/25 Втр 00:57:21 373286 43
>>373272
Плюсы квартиры + плюсы дома.
Аноним 22/09/25 Пнд 13:41:06 373888 44
>>373286
Минусы квартиры + минусы дома.
Аноним 25/09/25 Чтв 13:12:38 373993 45
>>373286
>>373888
Блджад, оба правы.
- многоуровневость
+ ни сверху ни снизу соседей нет
- есть соседи по бокам
+ есть своя земля
- земли очень мало
+ крайне неэффективное использование площадей почти во всех проектах¹
- правильных таунхаусов в России почти нет!
и так далее.
И бонусами ещё специфичные вопросы, которые могут быть, а могут не быть. Например, водоснабжение и водоотведение. Оно может быть от города общим, может быть на конкретный дом, а может быть и так, что каждый блок решает эти проблемы отдельно. И вообще когда начинается совместное использование без управляшки может начаться трешак.

¹Давай про площади быстренько? Итак, вот тебе продают блок на 3 уровня: два этажа + мансарда. Платина. Площадь этажа в осях — 50 м². Какова будет эффективная площадь? Нет не 150 квадратов. Из каждого этажа вычти площадь лестницы (6-8 квадратов), коридоров, чтобы ходить вокруг неё (на первом можно обойтись без коридора, но там будет тамбур на входе), котельную, задублированные на каждом уровне С/У (на одноуровневый дом 3 С/У это роскошь и шик, а на трёхуровневый это минимальное необходимое количество), мансарда это неполноценный этаж со своими особенностями и т.п. Останется что-то около 100 м², если не меньше.
Кто не согласен -- тащите планировки, посчитаем вместе.
Аноним 26/09/25 Птн 00:07:50 374031 46
Аноним 26/09/25 Птн 01:00:23 374032 47
планировка.jpg 148Кб, 1000x827
1000x827
>>373993
>Кто не согласен -- тащите планировки
В свое время приценивался к одному узкому участку, прикидывал что там можно строить, планировка какого-то найденного в интернете таунхауса как раз нормально ложилась. Что-то около 6х10, то что мне и надо.
Аноним 26/09/25 Птн 01:07:33 374033 48
>>259908
> стоимость коммуналки дешевле, чем в частном доме
Ты ебанутый? Как она может быть дешевле? Тебе ее сосед по таунхаусу оплачивает? Вся коммуналка - платежи по счетчикам и тарифам. Никакого ремонта и содержания.
Аноним 26/09/25 Птн 02:23:08 374034 49
>>374032
> Что-то около 6×10
Ага, примерно так.
Без подписей сложно. Это тупо неудобная планировка, которая покажется нормальной только если других вариантов вообще нет. (а твои ГПЗУ и ТЗ можно? Просто пока могу судить только со своей колокольни)
Кухня-гостиная ≈15 м² где всё на проходе. Лучше, чем в хрущёвке, но до современного понимания комфорта — очень далеко.
мастер-спален: 0
Нормальных спален на первом этаже: 0 (это на самом деле очень так себе: через 10-20-40 лет ты законсервируешь второй этаж потому что не сможешь больше подниматься по лестнице)
Душа/ванной на 1м этаже нет. (когда тебе стукнет 75 у тебя из вариантов останется перестать мыться или перестать мыться)
Окон в С/У нет (для ТХ это понятно, но если возьмёшь за образец для нормального дома — обязательно заложи!)
Лестница-ноголомка: крутая и с забежными ступенями.
Во всём домике можно разместить ДВЕ нормальные кровати, при чём одну их них придётся поставить в гостиной.
Для такой компоновки — неоправданно большой холл, но оттяпать у него площади, чтобы превратить кабинет в спальню не получится: там проход дальше в дом.
Котельной не предусмотрено, так что обойдёшься без газа.
Я даже не понимаю ЦА этого дома. Семья с одним или двумя детьми? Но тогда точно уверенная, что дети никогда не приведут туда никого!
Что касается площади:
Кухня-гостиная ≈15 м²
Кабинет ≈7 м²
Главная спальня ≈12 м²
2 "детские" ≈2*7 м²
То есть, имея площадь на первый взгляд ≈120 м² (и именно так его будут тебе продавать) — в реальности получаешь что-то около 50 м² полезной площади и ужасно некомфортную планировку, которую проклянёшь со временем.
Из плюсов — запихнули целых 4 комнаты, сделать столько в 1-этажном доме с такими габаритами нереально и чулан под лестницей… вот и всё.
Аноним 26/09/25 Птн 04:47:13 374035 50
>>374034
Разве нельзя котел на кухне повесить?
Аноним 26/09/25 Птн 12:01:15 374051 51
IMG202509261158[...].jpg 2474Кб, 3072x2405
3072x2405
>>374034
Да площадям комнат нормально, примерно набросал, без учёта толщины стен, длина даже 9.5 получилась. Обычно на таких узких участках в глубину можно сколько угодно расти.
Котел можно повесить в прихожей.
Лестница да, из-за узкого простенка до двери в спальню на 2м этаже скорее всего будет с забежными ступенями.
Аноним 26/09/25 Птн 12:10:21 374052 52
>>374034
>а твои ГПЗУ и ТЗ можно
В итоге был выбран другой участок шириной 22 метра по фасаду.

На том участке узкая фасадная часть 12.5 метров шириной, метров через 20 участок становится шире уступом до 18.
Из ТЗ хотелось обычный эконом-стандарт, типа кухня-гостинная + спальня на 1м, 3 спальни на втором, в пределах 120м2. Ну и опять же это не совсем загородный дом, а дом-квартира в центре облцентра-полумилионника.
Аноним 26/09/25 Птн 13:50:50 374062 53
image.png 824Кб, 1024x768
1024x768
image.png 1236Кб, 1024x680
1024x680
image.png 1747Кб, 1024x869
1024x869
>>374035
Колонку, которая будет греть воду в кранах — можно. А вот если котёл и полное его оснащение: бойлер косвеннорго нагрева, резервный бак, коллекторный узел и т.п., то это уже просто занимает дохуя места. А когда речь о двух- или трёхконтурной системе отопления, то всё становится ещё веселее. Впрочем, тут я погорячился: на самом деле монопенисуально, какой выбирать -- электрический по хорошему требует той же обвязки.
Я сначала подумал о том, что к помещениям, в которые устанавливается газовое оборудование (в том числе плиты для готовки) есть ряд требований, в частности: объём от 15 м³, наличие окна с определёнными характеристиками, прочее-прочее и(!) оно должно закрываться, то есть недопустимо, чтобы газ в случае утечки заполнил весь дом. Но тут это решаемо (и всё-равно придётся решить потому, что плита).
Плюс, если мы говорим о частном доме, то возникает вопрос водоподготовки и водоочистки, то есть ты взял воду из скважины на участке, завёл в дом и тебе надо пропустить её через фильтры.
Смотри, На первом пике типичная система отопления и обогрева в котельной. Прям вообще типичная, без изысков. На втором и третьем — система водоподготовки, при чём формы и размеры баков зависят от воды в твоей скважине: чем она хуже, тем больше будет вот этих синих и серых баков, которые по факту фильтры. И всё это надо где-то поставить.
Аноним 26/09/25 Птн 14:53:37 374069 54
>>374062
>Смотри, На первом пике типичная система отопления и обогрева в котельной. Прям вообще типичная, без изысков.
С гидрострелкой на 3 контура с принудительной циркуляцией насосами, прямо очень типично и без изысков.
Да ещё зачем-то двухконтурный котел, при наличии БКН.
Аноним 26/09/25 Птн 15:56:21 374070 55
image.png 786Кб, 1473x1080
1473x1080
image.png 876Кб, 1200x675
1200x675
image.png 763Кб, 1000x1000
1000x1000
image.png 2790Кб, 3508x2481
3508x2481
>>374051
Как же я люблю эти картинки где толщина стены НОЛЬ. Просто обожаю. Ты посчитал неправильно.
Для примера пик1 (рандомный проект с одного сайта с тысячами планировок разной степени укуренности, я смотрел что есть из максимально вытянутых прямоугольных домов).
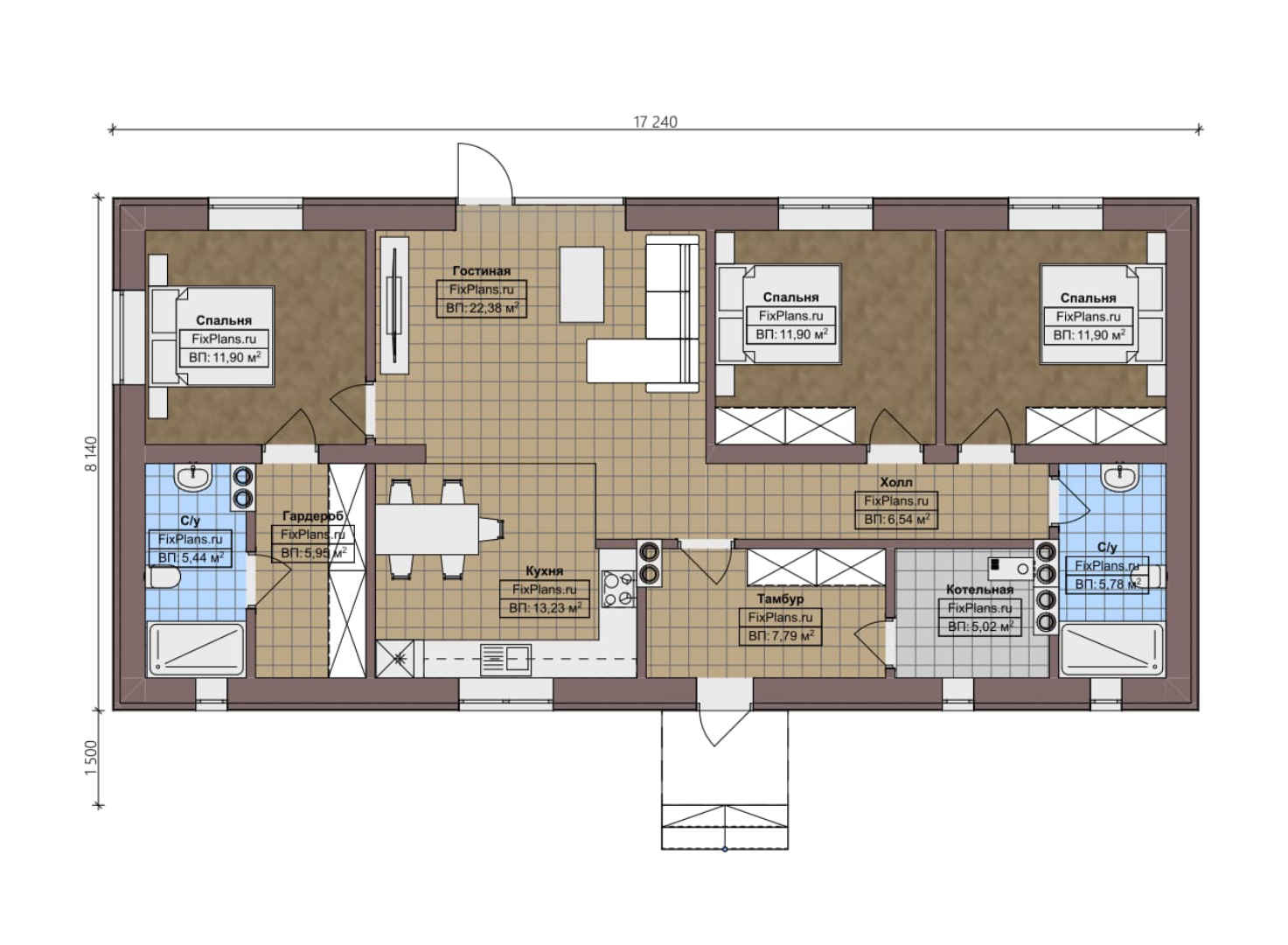
Пятно застройки: 8140×17240=140333600≈140,3м²
Общая площадь всех помещений: 5.95+7.79+5.02+5.44+5.78+11.93+6.54+22.38+13.23 = 107.83м², то есть в таком доме только стены съели больше 30м². А за вычетом холлов/коридоров, тамбуров, ТП и всего такого полезная площадь и того меньше.
Пересчитай.

>>374052
>был выбран другой участок
Тут ты молодец. Потому что на участке с
> фасадная часть 12.5 метров
был бы пиздец. Максимум 6,5 это грустно, тогда более-менее спас бы только дом-вагон типа 6×15~6×20, или что-то типа дачных домиков.
> метров через 20 участок становится шире уступом до 18.
Или, кстати, задвигать дом назад, делая большой и приятный фронт-ярд. У этого решения есть как плюсы так и минусы, плюсов больше, но подходит не всем.
> кухня-гостинная + спальня на 1м, 3 спальни на втором
Ты берёшь дом на пару лет и знаешь (не «уверен», а именно знаешь), что скоро съедешь оттуда? Потому что если это не так, то строиться лучше в один уровень. Если ты по какой-то причине застрянешь до 50-60-70, то ты вообще больше не сможешь пользоваться лестницей. А проклянёшь её ты ещё раньше. Вокруг ИЖС много срачей: о технологиях, о банях, о гриле, но в том, что дом должен быть одноэтажным согласны по-моему абсолютно все.
>>374052
>эконом-стандарт, типа кухня-гостинная + 4 спальни, в пределах 120м2.
А ты на кулькуляторе считал? Вряд ли я быстро найду такое вообще.
Поясняю.
Минимальная площадь спальни для взрослых: 3×3=9м², туда влезает кровать и телевизор и остаётся место, чтобы ходить вокруг кровати, всё. Как минимум у одной из них должен быть гардероб (3м²) и С/У (4 м²). НО остальные будут лишены этого комфорта, а значит там надо будет ставить хоть какие-то шкафы (а для детей ещё должно быть место для игр на полу), значит другие три сами будут покрупнее, скажем, по 10 м², если туда ставится шкаф и односпальная кровать, опционально стол для работы и учёбы. Для комнат с двухспальными кроватями и шкафом нужно от 12 м²
Второй С/У -- общий на три спальни и кухню-гостиную (вообще-то это мало и некомфортно, сильно ниже стандарта, по хорошему на 4 спальни нужно 3+С/У, один из которых между входом и гостиной, чтобы помыть руки с улицы или сбегать из-за стола), должен быть чуть крупнее, минимум 5м².
Котельная (тепловой пункт). Допустим, высота потолков 3м, тогда котельная может быть 5м²
Кухня-гостиная которая не бесит по отзывам начинается с 35м², я дважды видел отзывы в духе "у нас 30м² и вот чуть-чуть не хватает"
Тамбур/прихожая. То есть грязная зона, отсекающая холод и грязь от квартиры. Там же должен быть шкаф для сезонной одежды (лучше отдельный гардероб, но места он займёт больше) и раздевалка быстрого доступа. ХОТЯ БЫ 6м².
Итак: 9+4+3+3
10+5+5+35+6 = 97м². И это без постирочных, кладовок и прочего.
ЭМПИРИЧЕСКИ (цифра от одного блогера-архитектора-экономиста) коридоры и холлы занимают 10-20%
Площадь застройки будет ещё + 20% условно. Итого площадь строительства минимального домика вываливается за 140м², а если делать не МИНИМАЛЬНЫЙ, а хоть с небольшими, но запасами — перевалит за 150. И ещё раз, это если всё считать по минимальным минимумам.
В общем, либо можешь попробовать взять за базу один из пиков 2-3 и попытаться там что-то выкроить, либо изменить ТЗ и посмотреть на такие как пик4, которые сильно больше.

Да, важно понимание про двухэтажные дома. Если ты возьмёшь дом 10×10 в осях 1-уровневый, посмотришь его план и сложишь площадь полезных комнат, то у тебя получится примерно 70м². Как думаешь, какова суммарная полезная площадь для двухэтажного дома в тех же габаритах?
Остановись на секунду прежде чем заглядывать под спойлеры и подумай.
Наверное, ты подумал, что "ну где-то почти 140, может даже чуть больше, ведь вторая котельная не нужна?"
На самом деле: 110м².
То есть примерно как у дома 10×15.

Это связано с тем, что в двухэтажном доме всегда есть лестница, съедающая площадь на каждом этаже и намного больше коридоров и холлов. И тут важная оговорка: квадратный метр строительства втором этаже (эмпирически) примерно в 1,5 раза дороже квадратного метра на первом этаже. Видимо, из-за лестницы, это дорогая штука. Так что если площадь участка позволяет, то лучше построй одноуровневый побольше.
Аноним 26/09/25 Птн 16:20:14 374072 56
>>374070
Один вопрос, тебе не жалко тратить столько времени и сил на объяснение чего-либо тупорылым людям? Они ведь это не оценят, ещё тебя высмеют и дураком обставят.
Аноним 26/09/25 Птн 16:50:28 374074 57
>>374069
>С гидрострелкой на 3 контура
Дык. Так сейчас строят отопительную систему: под окнами радиаторы (≈60°-70°-80°), по периметру тёплого пола горячая нитка (≈45°) для прогрева у стен, остальная площадь греется более спокойным тёплым полом (≈25°-30°). Впрочем, я не про насосы, они не так уж занимают место, я про баки, которые просто так на кухню не поставишь. Ну да, тут можно сэкономить, но не сказать, что в этом есть большой смысл прям охуеть какая экономия. Честно говоря это просто первый попавшийся в поисках по картинкам кадр, на котором видны котёл, БКН и расширительный бачок.
> Да ещё зачем-то двухконтурный котел, при наличии БКН.
Хм. Действительно можно было обойтись. Впрочем, это тоже мало влияет на выбор фото.

>>374072
Не жалко. Во-первых к критике я стараюсь (очень стараюсь и часто даже получается) относиться конструктивно. То есть либо я не прав и она говорит, где я ошибся и, соответственно, идёт на пользу (как в первой части этого поста, оба замечания конструктивны и в целом по делу, хотя я имел ввиду другое), либо критик не прав и тогда это ничего не значит. В процессе проверки иногда я узнаю что-то новое, иногда нахожу хорошие решения. А во-вторых на какое-то количество тех, кто высмеет найдётся тот, кто поблагодарит (и ещё несколько тех, кто это сделает мысленно вне зависимости от текста поста) и это окупит многое.
И есть ещё и в-третьих. Самые интересные замечания и наблюдения как из своих, так и из чужих постов я выношу в заметки в обсидиане и иногда просматриваю, свожу и переиспользую. Именно так я накидывал ТЗ для своего дома и участка, так же действую по работе и в других сферах.

Тут, знаешь, как в анекдоте работает:
> Преподаватель жалуется коллеге: «До чего же глупые у меня студенты! Раз объясняю — не понимают, второй раз объясняю — снова не понимают, третий раз объясняю — сам уже начинаю понимать, а они всё не понимают!»
Прям рабочая схема.
Аноним 26/09/25 Птн 20:42:39 374094 58
>>374070
>Как же я люблю эти картинки где толщина стены НОЛЬ. Просто обожаю. Ты посчитал неправильно.
Я ничего и не считал, а просто прикинул. Когда считал, брал ширину дома 6300 при толщине боковых стен 300мм из ГБ (получается кухня гостинная 5700 шириной, а спальни над ней 2800), ненесущих перегородок 100мм. А длину растягивал как мне захочется до приемлемых площадей. К моей картинке просто добавь толщину стен не за счет площади комнат и получишь типовой вариант дома до 120м2 на 4 спальни.
>Если ты возьмёшь дом 10×10 в осях 1-уровневый, посмотришь его план и сложишь площадь полезных комнат, то у тебя получится примерно 70м²
Ты площадь застройки с площадью здания путаешь. Наружные стены в площадь этажа не входят.

По 1/2 этажа даже спорить не буду, это скорее вкусовщина, чем экономическая целесообразность, и чаще всего определяется участком.
Аноним 26/09/25 Птн 20:51:50 374096 59
>>374074
У меня матанализ вёл сам декан, и студенты стонали, что нихуя непонятно в этой вашей математике. И декан говорил - а вы выучите, и тогда поймёте.
А студенты опять своё - как можно выучить, если непонятно нахуя, сначала нужно понять, а затем уже выучить.

А декан опять на своём - надо выучить, и если выучишь - тогда придёт понимание. Короче спорили долго и каждый остался при своём. Но потом я осознал, что декан был охуеть как прав.
Аноним 27/09/25 Суб 13:54:06 374124 60
>>374074
>Так сейчас строят отопительную систему: под окнами радиаторы (≈60°-70°-80°), по периметру тёплого пола горячая нитка (≈45°) для прогрева у стен, остальная площадь греется более спокойным тёплым полом (≈25°-30°).
Типичная система отопления в бюджетном сегменте (а это 80% рынка) это когда двухконтурный котел и одна ветка на отопление от насоса котла. Озвученное это скорее к чему надо стремиться, и является достаточным, а не необходимым.
Аноним 28/09/25 Вск 18:03:26 374174 61
Живу в тауне, 80кв.м.+20 подвал(вход общий, с торца дома в подвал, и там уже под каждой хатой, подвал такой, что там можно жить прям, у кого-то сауна стоит, у меня небольшая мастерская, но в основном у всех склад). Участок маленький. Квартплата и коммуналка даже, внезапно, немного дешевле, чем за квартиру аналогичной квадратуры. Опыт не похож на проживание в коттедже совсем, скорее это такая квартиры. Все отлично с УК, все централизовано, до калитке все убирается зимой и подстрегается летом. Большой район со смешанным жильем, есть и коттеджи, и многоквартирные дома тут же. Покупал 10 лет назад за 2,5кк коробку (цена двушки хруща с ремонтом), чуть больше 1кк на ремонт (сам делал все почти), сейчас рыночная 13кк (хрущ двушка с ремонтом сейчас 4,5кк-5кк).
Аноним 28/09/25 Вск 22:38:01 374187 62
>>374174
>сейчас рыночная 13кк
Попробуй продай за такую цену
Аноним 29/09/25 Пнд 06:34:40 374191 63
>>374187
Покупают, периодически соседи продают. Это нижняя граница, на районе таунов много, а маленьких мало совсем, все остальные ещё больше площадь, большой участок, ещё большая цена.
Аноним 29/09/25 Пнд 06:39:56 374192 64
>>374124
У меня только теплый пол, на двух этажах, в одной из комнат чёт по пизде пошел пару лет назад, и все равно даже в самые мороза на полную не открываю, иначе сварюсь. Сибирь, -40с бывает. Отопление центральное, но как бы не прям городская сеть, относительно новая котельная на районе лол.
Аноним 30/09/25 Втр 14:26:17 374279 65
>>259913
Ей 20+ лет уже... И она до сих пор хороша.
Настройки X
Ответить в тред X
15000
Добавить файл/ctrl-v
Стикеры X
Избранное / Топ тредов