Главная Юзердоски Каталог Трекер NSFW Настройки

Инженерное дело

Ответить в тред Ответить в тред

Доска закрыта.

Check this out!
<<
Назад | Вниз | Каталог | Обновить | Автообновление | 410 121 281
Вопросов-ответов тред Аноним 14/10/14 Втр 22:40:48 36 1
9Кб, 392x455
392x455
Задаете ваши вопросы, получаете свои ответы
Аноним 15/10/14 Срд 00:40:59 51 2
127Кб, 690x682
690x682
Ничего сложного, понимаю, как решать.
Но вот непонятно про условие равнопрочности AD и BD, ибо самих этих AD и BD не обозначено. По логике, поскольку пределы текучести на сжатие и растяжение разные, а напряжения самые большие на длинной и узкой колонне, стоит взять равнопрочность сжимающегося участка тонкой колонны под силой F и растягивающегося над ней.
Стоит делать так или иначе?
Аноним 15/10/14 Срд 12:37:17 64 3
>>51
Почему только тонкой колонный под силой? Ты всю колонну должен учитывать.
Аноним 18/10/14 Суб 22:21:46 154 4
>>64
Так равнопрочность должна быть для двух участков. А равнопрочность для всей колонны просто невозможна. Ибо разное напряжение однозначно будет.
Аноним 20/10/14 Пнд 02:08:45 168 5
Не понятно вообще что требуется найти в задаче. Вопрос сформулирован неточно. Про эпюры понятно, но это элементарно. Что такое w, не обозначено.

Что за коэффициент запаса текучести? Я в гермашке учился, не знаю на русском что имеется ввиду: то ли сколько процентов напряжения до границы пластичности, или сколько ещё можно повысить напряжение после границы пластичности. Короче хуйня а не задача.
Аноним 23/10/14 Чтв 06:46:40 229 6
Собственно, задачу уже сдал, сделал так, как хотел.
>>168
W - перемещение. Коэффициент запаса по текучести считатся так: предел текучести делят на максимальное напряжение в системе.
Аноним 23/10/14 Чтв 08:04:41 232 7
64Кб, 891x517
891x517
>>36
Вот начало поста с конструкцией на пике >>230
Пилю из 30 швеллера с жесткой заделкой, упростил схему и прикладываю нагрузки от веса вышележащих конструкций 0,5 кН/м и впиздяриваю ветровые, конец балки уходит на 5,5 см, в Лире такая же ситуация.

Аноним 28/10/14 Втр 16:50:17 333 8
Вопрос к мостовикам. Подскажите какую-либо свежую литературу (рекомендации, техкарты и т.) по укреплению откосов насыпей (конусов). Есть 24-летней давности только техкарты. Параллельно гуглю, но может тут кто подскажет что интересного.
Аноним 28/10/14 Втр 19:12:45 338 9
>>36
Проектировщики есть?
Скажите, сильно ли пригодились знания с первых двух курсов универа?
Учусь на 2-м, по 1 тройке за сессию, но сдаю и учу все одним днем, т.е. через пару недель уже забываю больше половины материала. Отсюда постоянное чувство, что из меня выйдет хуевый инженералсо, очень тяжек теормех, его знания сильно вам пригодились? Не хватает отваги для его дроча
Аноним 31/10/14 Птн 18:01:21 392 10
>>338
Нирикамендую забивать на эти предметы. Я сам забивал, а потом на уже на работе такой: "опа, надо расчитать редуктор, а ТММ то проёбывал" или "надо посчитать нагрузки для конструкции, а сопромат проёбан". Приходилось поднимать материалы и изучать.
Аноним 31/10/14 Птн 21:10:14 393 11
>>338
>теормех
Тащемта, главный предмет для многих специальностей.
Аноним 04/11/14 Втр 21:41:38 424 12
>>393
>>392
Спасибо. Постараюсь меньше проебать.

А во время работы сложно будет это все подтянуть?хотя там уже выбора не будет, придется
Аноним 05/11/14 Срд 14:58:08 431 13
>А во время работы сложно будет это все подтянуть?

Смотря на сколько запустил предмет.
Аноним 05/11/14 Срд 21:47:54 433 14
Теплотехники есть?
Хотелось бы задать пару вопросов по специальности.
Аноним 06/11/14 Чтв 17:23:06 436 15
Хочу, продолжая учиться (4й курс), устроиться инженером-конструктором (завод набирает с нашей кафедры желающих). Специальность - машиностроение. Что надо знать? Что уметь? Имею ввиду скиллы, действительно нужные работнику, а не знания, скажем, экономики-хуекономики или вызубренных параграфов из учебников.
Аноним 07/11/14 Птн 19:59:46 456 16
>>436
-Читать/чертить чертежи
-Знать технологии изготовления деталей на станках хоть примерно, чтобы не выдумать ЙОБА-деталь, которую станочник хуй изготовит
-Свариваемость металлов
-Умение доказать, что сконструированное тобой работоспособно, технологично и т.д.
Это так на вскидку
Аноним 07/11/14 Птн 21:05:44 457 17
>>436
Ну очевидно что завод знает что набирает недоучек и там скорее всего доучат чему надо, вообще почему ты это у нас, а не заводчан спрашиваешь не ясно.
Аноним 07/11/14 Птн 21:11:06 458 18
Стыдно спрашивать, но придётся:
Какие книги есть в электронном виде для проектирования литьевых форм для пластмасс?

Справочник технолога по этой теме прочитан, там мало.
Учебник Лейкина в сети отсутствует.
Аноним 09/11/14 Вск 00:51:44 471 19
>>433
Рассказывай, всем интересно. Может чего и всплывет в памяти по теме.
Аноним 10/11/14 Пнд 10:46:24 493 20
Сап, инженерач! Пишу курсовой по электронике и микросхемотехнике, разрабатываю схему сопряжения пирометра с АЦП. Котаны, не найдётся ли у кого примера? Очень сложно работать, не имея с чем сравнить. Заранее спасибо и добра вам.
Аноним 10/11/14 Пнд 16:11:18 497 21
>>493
А в чем сложность? У пирометра на выходе какой-то особенный сигнал?
Мимо-радачер
Аноним 10/11/14 Пнд 16:20:45 498 22
>>36

Задаю вопрос: в какой программе можно рассчитать прочность металлоконструкций из стандартного металлопроката? Сварные и на болтах.
В идеале, чтобы можно было накидать готовых элементов, указать точку(точки) приложения нагрузки и получить на выходе, при какой нагрузке начнётся неупругая деформация.
Аноним 10/11/14 Пнд 19:50:22 499 23
>>498
Солидворкс же.
Аноним 10/11/14 Пнд 20:25:27 500 24
>>497
Сложность в том, что я патологически не воспринимаю схемотехнику, хотя вроде бы и не являюсь совсем потерянным для инженерии (СУшник, торчу от теории автоматизации и микроконтроллеров) и жизни дурачком. Горение курсача потихоньку начинает источать очень неприятный запах, начать искренне понимать то, что не всасываю уже год - расчёты фильтров, нормализаторов и АЦП, - поздновато. Потому и прошу о каком-то примере, глянув на который я призову свою суперсилу проведения аналогий и удачно его скосплею. Правда, триллионы канделл лучей добра тому, кто поможет, я верю в тебя, анон.
Аноним 10/11/14 Пнд 21:47:59 502 25
>>36
учебник или материалы по допускам, посадкам и отклонениям реквестирую, чтобы совсем уж для тупых было понятно
Аноним 10/11/14 Пнд 22:58:02 503 26
>>502
Справочник технолога, том 1.
Проще, я думаю, не найти.
Аноним 11/11/14 Втр 00:20:19 504 27
>>458
На твой вопрос не отвечу, но у меня к тебе другой вопрос: сколько примерно зарабатывают люди, которые занимаются проектированием литьевых форм для пластмасс?
Аноним 11/11/14 Втр 12:34:14 507 28
>>499

Спасибо, няша.
Аноним 11/11/14 Втр 20:33:46 513 29
>>507
Только ручками лучше проверь, солидворкс иногда может ошибаться.
Аноним 13/11/14 Чтв 13:06:14 525 30
Посоны, частенько слышу мнение, что российский металл говно. Ктонибудь имел дело с зарубежными сплавами, как они?
Аноним 13/11/14 Чтв 13:59:23 528 31
>>525
Прочитал металл как метал. Не знаю как насчет металла, но русский метал не очень.
Аноним 13/11/14 Чтв 20:41:06 543 32
>>525
> слышу мнение, что российский металл говно
Очевидно, мнением делился какой-то долбоёб. Если есть какие-то претензии по конкретным маркам: составу, чистоте, соблюдению технологии - то о них и говорят. Иначе - только кукареканье. Не надо слушать петухов.
Аноним 13/11/14 Чтв 21:50:03 548 33
>>525
Видимо, поэтому эйрбас с боингом титан в рашке покупает.
Аноним 14/11/14 Птн 10:13:49 557 34
>>525
Пробовали капиталистический алюминий немножко, в нашем случае его вело монофалично с российским при фрезерной обоаботке.
Аноним 15/11/14 Суб 11:54:46 560 35
>>525
Ничего не скажу за зарубежные стали, но как энергетик тебе скажу что по сути единственной преградой для реализации суперсверхкритики 650С, является отсутствие подходящих материалов в стране. За рубежом такие циклы уже давно реализованы.
Аноним 21/11/14 Птн 13:54:21 583 36
38Кб, 1320x776
1320x776
Вопрос к мостовикам и дорожникам: На приложенной схемке выделил красным оттенком насыпь, примыкающую к устою. Если тело насыпи не имеет форму усеченного конуса, то она всеравно именуется конусом или как-то иначе? Просто насыпь береговой опоры?
Аноним 21/11/14 Птн 14:26:46 584 37
Подкиньте годной литературы по сопромату. Сессия через месяц, а я толком не шарю. С меня непадающие ракеты.
Аноним 26/11/14 Срд 08:22:50 606 38
493Кб, 1440x2560
1440x2560
568Кб, 2560x1440
2560x1440
Начертательная геометрия, помогите, пожалуйста. Я понимаю, как была найдена точка, мог бы это сделать заново, но не знаю, как этот способ называется. Кто-нибудь?
Аноним 01/12/14 Пнд 13:31:24 616 39
Инж, как рассчитать или в каком справочнике можно подсмотреть предел нагрузки на стальную балку/швеллер?

Например, у меня есть 200 швеллер, 3 метра, расположен горизонтально, края на опорах, всё остальное в воздухе.. К его центру прикладывается усилие, N тонн. При каком давлении швеллер начнёт деформироваться?
Помоги, анон, ты же можешь. Периодически сталкиваюсь при работе, заебало на глаз делать.
Аноним 04/12/14 Чтв 23:39:07 624 40
>>606
навскидку построение линии пересечения двух треугольников.
05/12/14 Птн 21:11:49 625 41
>>624
Как оказалось, фронтально-проецирующая плоскость.
Аноним 05/12/14 Птн 22:52:28 626 42

>>36
какие нужны знания для проведения опытно-конструкторских работ(скажем автомат новый сделать)?
Аноним 09/12/14 Втр 20:08:45 641 43
>>616
а где работаете, уважаемый, что на глаз делаете?
Аноним 09/12/14 Втр 21:36:43 642 44
>>616
Прямая задача.
1. Рисуешь эпюры моментов. Видишь, что Mизг макс=NL/2
2. Находишь момент сопротивления сечения швеллера изгибу W. Формула в интернете.
3. Находишь напряжения =M/W.
4. Cравниваешь с пределом текучести материала швеллера.

Зная предел текучести и, надеюсь, учитывая запас прочности, решаешь обратную задачу.
Аноним 12/12/14 Птн 17:11:00 645 45
Допуск на Ø–0.01мм, шероховатость 0.63 Биение и соосность не указана.
Какое радиальное биение допускается?
Аноним 13/12/14 Суб 16:27:48 647 46
Аноним 15/12/14 Пнд 15:35:41 657 47
>>647
Это ГОСТом регламентируется или справочная информация? Где искать?
Аноним 16/12/14 Втр 06:13:52 659 48
>>657
Допуск на отклонение формы идет по IT/2, насколько я помню метрологию.

мимо
10/02/15 Втр 21:53:33 721 49
>>36
Привет ананас,я студен-долбоеб,который нихуя не понимает в ТОЭ,есть тут такие кто шарит в этой хуйне? https://cloud.mail.ru/public/6b5877aff5fa/2449.doc
Пятая лаба,Вопрос 3 и 5.
С меня как обычно
Аноним 07/03/15 Суб 01:08:20 734 50
Анончики, если есть кто живой - поясните как расписывать РП и УКБ для станков с ЧПУ.
Аноним 14/03/15 Суб 00:37:58 738 51
>>36
нужна какая-нибудь книжка в которой рассказывается как поэтапно от идеи до опытного образца создаются изделия. и еще каталоги деталей.
Аноним 25/03/15 Срд 18:49:13 750 52
>>738
Хуялоги. Почитай «оружие победы» что ли. Потом перефразируй вопрос.
Аноним 19/04/15 Вск 20:04:16 761 53
>>738
> идеи до опытного образца создаются изделия.
Тебе теория нужна или история?
Для теории Можешь читнуть Орлова "Основы конструирования". По-хардкору можешь угореть по Альтшуллеру и ТРИЗ.
>>738
Какие каталоги, каких деталей?
Аноним 23/04/15 Чтв 20:13:35 763 54
>>761
Нюфане разве лучше не с Деталей машин Иванова начинать?
Аноним 05/05/15 Втр 03:48:32 774 55
52Кб, 800x493
800x493
>>36
Братки, а на напомните мне котельную формулу, а то что-то нагуглить не могу.
Ну или любую формулку для расчёта прочности трубы под давлением. Пикрандом
Аноним 17/05/15 Вск 20:24:03 786 56
2367Кб, 3552x2000
3552x2000
>>36
В общем зачет через 3 дня не может кто помочь?задание списал а защитить не могу. Не могли бы вы объяснить по пункта что я тут сделал?
Аноним 17/05/15 Вск 20:25:10 787 57
2232Кб, 3552x2000
3552x2000
Аноним 19/05/15 Втр 13:14:53 789 58
Есть одна стойка sinumerik 840d.
Один пидарас изменил пароль пользователя и сделал ноги. Есть ли возможность узнать пароль без каких либо последствий для системы?
Аноним 24/05/15 Вск 18:34:05 795 59
527Кб, 1944x2592
1944x2592
Помогите с термехом, пожалуйста. Что-то мне кажется, что уже где-то ошибся.
Аноним 24/05/15 Вск 19:01:18 796 60
>>795
На всякий случай скажу, что больше не актуально.
Помогите в создании резьбовой конструкции Влад 08/11/15 Вск 18:38:49 943 61
223Кб, 720x960
720x960
Доброго времени суток!)
Подскажите,пожалуйста,каким способом можно реализовать эту конструкцию?
Смысл в том,чтобы при кручении элемента 3,стержень(элемент1)отпускался вверх или вниз,а элементы 2 и 4 были статичны.
Аноним 26/11/15 Чтв 18:29:04 979 62
161Кб, 1280x722
1280x722
Есть функциональная схема на приточную-вытяжную установку. Разрабатываю шкаф управления. Встал вопрос. Зачем два привода на один вентилятор? С проектировщиком связаться не получается.
Аноним 29/11/15 Вск 09:58:34 982 63
Что случилось с разделом /arch?

Параллельно вопрос, как студенту-архитектору заработать денег?

Как вообще архитекторы делают деньги.
Аноним 30/11/15 Пнд 03:28:47 983 64
>>796
лучше бы правильный ответ написал
ГрандСмета Аноним 30/11/15 Пнд 11:41:38 984 65
25Кб, 360x255
360x255
Господа, есть ли какие-то интернет-ресурсы, способные предложить обучение программе ГрандСмета, помимо видео с оф. сайта, датируемые 2011-ым годом?
Нужно изучить основы программы, сам знаком с составлением смет на уровне института.
Аноним 02/12/15 Срд 14:38:41 986 66
>>979
возможно это просто два кабеля.. преключение со звезды на треугольник..
Аноним 02/12/15 Срд 14:41:14 987 67
>>986
>>986
или вентилятора тоже два, просто так обозначили на функционалке..
Аноним 04/12/15 Птн 03:45:19 989 68
1348Кб, 2462x3489
2462x3489
Анон я гуманитарий с неполным высшим, понял что жил во лжи, в душе я конструктор, освоил кад и сапр инвентор/фюжн360

скажи есть ли шанс устроиться мартышкой эникеем на завод в дс или область? убирать говно за чпу мастерами или что то подобное?
Аноним 04/12/15 Птн 07:50:26 990 69
10Кб, 873x105
873x105
84Кб, 448x336
448x336
85Кб, 448x336
448x336
Первая неудача, но там реально крутое место, если и в ученики не возьмут, то буду фапать на железки под новый год -_-
Аноним 06/12/15 Вск 13:38:55 994 70
>>989
Шанс есть. Однако отсутствие профельного образования тебе сильно помешает. Правда в некоторых места сильная нехватка кадров, и может тебе повезет. Только с сапрами надо целить в конструктора, специально для тебя есть должность техник. Тот кто модельки по чертежам рисует.
Кстате а это не твоя вакансия где промелькивала, типа 30 лет, бармен-хуярмен и вдруг станки чпу?

Аноним 23/12/15 Срд 03:40:56 1015 71
вообщем вопрос, я в сопромате не рублю, может ктому просто будт посчитает (из сцы там за станцию говорим)
задачка:
Каких максимальных размеров тонкостенную(толщина стенок к радиусу меньше 1/20) сферу можно соорудить, учитывая только удельную прочность распространенных материалов (алюминий, сталь, титан и тд), покоящуюся на поверхности, морской глади (те при наличии опоры, для упрощения можно принять что давление по опорной поверхности - постоянно). Давление внутри сферы принять равным атмосферному. Динамическими нагрузками любого толка пренебречь.

не обязательно до 1/20, если тонкостенная конструкция это упрощение задачи, то не заморачиваясь принять ее за тонкостенную, конструкция сплошнякова-монолитная
Аноним 28/12/15 Пнд 02:18:43 1017 72
Доска, живи! В каком каде можно делать всякие поршни и шаровые соединения? Где можно научиться тыкать на нужные кнопки?
Аноним 02/01/16 Суб 19:53:49 1021 73
>>1015
бамп так сказать, не лезет оливье и все такое - все думаю и думаю
Аноним 07/01/16 Чтв 10:50:32 1022 74
>>1017
Creo Parametric. Поршни и шарниры есть в стандартном курсе ptc. Порог вхождения в Creo высокий.
Аноним 15/01/16 Птн 19:29:44 1028 75
3437Кб, 4000x2581
4000x2581
Инженеро-боги, я к вам с тремя вопросами.
1. Нужен ли какой сертификат о окончании курсов по автокаду/архикаду для трудоустройства/подработки?
2. Что задрачивать из них авто/архи, что будет перспективнее в плане заработка?
3. Стоит ли идти на групповые курсы или самому освоить?
мимо-студент-недоинженер
Аноним 16/01/16 Суб 13:16:17 1029 76
>>1028
1. Нужен опыт. Могут посадить за комп и дать задание на 20 мин. начертить детальку.
2. Вот когда устроишься - поймешь, что нужно для работы. Как правило автокад по умолчанию у инженера плюсом какой-нибудь солид или архи, в зависимости от специальности.
3. Сам дрочи. На тюбике полно видосов. Но не забывай, что автокад это всего лишь инструмент, сам по себе ничего не даст. Хочешь стать инженером, учи сопромат и расчетные программы.
Аноним 16/01/16 Суб 16:58:45 1030 77
>>1029
Спасибо, буду задрачивать сопромат, на который я положил болт и автокад осваивать.
Аноним 18/01/16 Пнд 21:00:49 1034 78
>>1021
все еще думаю ну вы же инженеры, что вам стоит
Аноним 25/01/16 Пнд 03:48:31 1042 79
>>1030
>на который я положил болт
Непростительная ошибка, что просто пиздец.
Это же самое важное. Выучи ты хоть все программы мира - нет тебя места в строительстве без сопрамата. Разве что быдлом на стройке руководить.
Аноним 04/02/16 Чтв 16:27:30 1056 80
test
Аноним 10/02/16 Срд 19:37:42 1067 81
>>36 (OP)
Резьба двухупорная и внутри и снаружи трубы? Или это значит, что она с двух сторон (упоров)?
Аноним 20/02/16 Суб 17:41:41 1082 82
>>36 (OP)
Как стать изобретателем?
Аноним 21/02/16 Вск 21:35:01 1087 83
128Кб, 651x428
651x428
>>36 (OP)
Есть одна сталь: Cт3сп5. Объясните нормально, что значит цифра 5? Гост говорит, что это категория проката- пикрелийтед, но из этой таблицы мне нихуя непонятно. Что такое Х.С. в первом столбце, что значит нормируют характеристику или не нормируют, как это на практике отражается?
Аноним 22/02/16 Пнд 19:13:58 1088 84
>>1087
Да, 5 - это категория проката.
Х.С. - это химический состав.
Если характеристику нормируют, то это значит, что после получения проката проводят лабораторные исследование на образцах по данной характеристике на соответствие ГОСТу. Например, для 3 категории проводят испытания на ударную вязкость на образцах полученный из данной партии проката при температуре 20С. А ударную вязкость при -20 и -40 не проверяют. Похуй какой там KCU при этих температурах, так как эта характеристика не нормируется согласно ГОСТу. А вот для категории 4 или 5 уже нужно проводить ударные испытания при -20С.
Химический анализ проводят для всех категорий, кроме первой. Т.е. если прокат 1 категории, то производитель не гарантирует химический состав проката согласно ГОСТ 380.
Аноним 24/02/16 Срд 19:28:58 1092 85
прошу пояснения у господ-инженеров за передаточное отношение в механическом редукторе. i=M2 / M1 ; i= w1 / w2.
т.е. можно сказать, что отношение моментов и угловых скоростей обратно пропорционально. логически оно и понятно, чем быстрее крутится первое колесо (ведущее), тем медленнее крутится второе (ведомое), при этом момент, который создает второе колесо будет больше.
но если мы посмотрим формулу - M=J(dw/dt), то в ней момент и угловая скорость связаны прямо пропорционально. вот это и нуждается в пояснении
Аноним 27/02/16 Суб 10:35:12 1093 86
>>1092
> чем быстрее крутится первое колесо (ведущее), тем медленнее крутится второе (ведомое)
Вовсе не обязательно. В первую очередь передаточное отношение определяется отношением количества зубьев. Всё остальное - производная.
А если ведущее колесо имеет большее количество зубьев и оно будет вращаться со скоростью w1, то w2>w1 или w2<w1?
Аноним 27/02/16 Суб 19:50:54 1094 87
63Кб, 542x430
542x430
Посоны, посоветуйте где можно закупить стальных ПОЛИРОВАННЫХ валов диаметром 8 мм, метражом. Буду очень благодарен.
Аноним 27/02/16 Суб 19:51:13 1095 88
>>1094
ну и подешевле бы, конечно
Аноним 27/02/16 Суб 22:08:11 1096 89
>>1094
Иди на форумы производственников/инженеров. Тут навряд ли помогут.
Аноним 28/02/16 Вск 11:31:06 1097 90
>>1094

в спб продает такие компания технобиринг и подобные организации, продающие подшипники.
Аноним 29/02/16 Пнд 11:21:02 1099 91
Аноним 04/03/16 Птн 14:28:31 1104 92
>>1093
согласен, да. уточняю.
пусть ведущее колесо имеет z1 зубьев, вращается со скоростью w1. ведомое имеет z2= 2 x z1 зубьев. скорость ведомого будет w2 = w1 / 2, но момент М2 = M1 x 2; при этом момент связан с угловой скоростью прямо пропорционально. требуется пояснение по отношению моментов и угловых скоростей
Аноним 04/03/16 Птн 21:26:50 1105 93
>>1092
>>1104
А, вот где у тебя ошибка.
> M=J(dw/dt), то в ней момент и угловая скорость связаны прямо пропорционально.
Это не верно. Здесь момент прямо пропорционален угловому ускорению, а не угловой скорости.
Если w=const (что обычно подразумевается при расчетах зубчатого зацепления), то твоя формула не работает.
Когда нужно связать угловую скорость и вращающий момент, то это делают через мощность.
P=M*w. Отсюда M=P/w.
ДАУНСКИЙ ОВПРОС Аноним 09/03/16 Срд 02:00:45 1108 94
36Кб, 800x600
800x600
Посоветуйте простой, быстрый и надежный метод соединения разборных металлических конструкций, когда в трубу впихивает херня и в ней держится (допустим другая труба или деталь). Чтобы разобрать а потом опять собрать. При этом без нарезки резьбы, минимум операций при изготовлении такого соединения.
Можно тупо вставить одну деталь в другую, просверлить и захуячить болтом? На чертеже изобразил.
Как было бы правильно? Какие вообще варианты есть?
Аноним 09/03/16 Срд 15:12:39 1110 95
>>1108
так и хуяч. проще не придумаешь.
/thread
Аноним 09/03/16 Срд 15:13:21 1111 96
>>1110
хуячь
самобыстрофикс. ёбаная клавиатура...
Аноним 09/03/16 Срд 20:06:35 1112 97
>>1108
Ни диаметра, мать его, ни габаритов. Характер нагрузки не известен, цель непонятна, эскиз, ебать мой хуй, вырвиглазный. Так и не понял, чего ты хочешь.
Аноним 10/03/16 Чтв 11:11:24 1113 98
35Кб, 273x405
273x405
>>1112
Диаметр как мой хуй, примерно. Спортинвентарь, допустим, стенки, турнички, какой там характер нагрузки? Чтобы тело двачера выдержало главное ну и если он повеситься захочет на турнике, это уже ударная нагрузка будет если он резко табуретку под собой уронит, ну вы понели. Хочу, чтобы конструкция разбиралась и собиралась, никакой сварки.
Аноним 10/03/16 Чтв 21:10:25 1114 99
500Кб, 1342x1069
1342x1069
Анон, можешь доставить пример шарнирного сопряжения фермы с поясами из двутавров и колонны?
Возможно что это как на пикрелейтед справа только без фасонок и с Двутавром вместо уголков?
Аноним 11/03/16 Птн 21:55:45 1118 100
40Кб, 1035x829
1035x829
>>1113
я хз, ты так хочешь? Отверстие в трубе трудно делать, чтобы другую трубу вставить.
Аноним 12/03/16 Суб 10:26:33 1125 101
>>1118
Именно так! Красиво рисуешь, спасибо :3
Это еще более менее реализуемая задумка из моей головы, как делать дырки придумаю, а вот что на счет прочности такого соединения? И как у него будет с "пространственной жесткостью" (не будет болтанки если в конструкции таких соединений несколько?) Ну так, с инженерной точки зрения.
Аноним 12/03/16 Суб 11:16:12 1127 102
22Кб, 514x346
514x346
>>1125
ну хрен знает, куда ты все это будешь лепить. Если тебе нужен турник съемный, чтобы le maman не спалила, то посмотри на турники, которые с резьбовыми трубками продают. Вкручиваешь два шпунтика в косяк, вставляешь в один турник правым торцом, крутишь, левый распирается в косяке. Если косяк хуевый, то может распидорасить со временем.
Если нужны брусья - то можно немного по другому сделать, я делал как на моей пикче. Две доски 100х30 или типа того, они вбиты гвоздями к двум рядом стоящим деревьям. В нихвставлены трубы (я брал 25х25, неудобно, но выдерживала чуваков весом 80 кг) длиной по метру. Всаживаешь их между досками, фиксируешь u-образными хомутами или саморезами, хуй знает, короче. Можешь косынки влепить под углом, чтобы подпирала трубу и передавала нагрузку на сосну или березу, хз что там найдешь в лесу, если он вообще есть.
Если нужны мсоединения под прямым углом - посмотри водопроводные трубы ( http://www.mastercity.ru/uploads/attachments/a0/3c/48/mastercity_2e9272678f19e4e10b171b0a2549ee4087.jpeg) и уголки ( http://gidroguru.com/wp-content/uploads/chugunnyy-ugolok.jpg ). Там уже есть резьба, но нуждны толстостенные трубы, да и опоры нужны, хз куда ты это лепить придумал.
А вообще не жлобись, попроси у маман разрешения и закажи нормальный турник с брусьями, который 150 кг выдержит. Закрепишь в стену анкерами какими-нибудь, повесишь, и будешь снимать в случае необходимости.
Аноним 12/03/16 Суб 13:51:54 1130 103
2910Кб, 1280x960
1280x960
>>1127
За идею с брусьями спасибо, анончик! Купить-то можно что угодно, хоть турник Земского лол но это не интересно, хочется усложнить жизнь себе, доебать анончиков-инженеров и понять жизнеспособность идейки. Хотелось бы самому научиться ваять простые "каркасы" такие, для разных нужд. Почему не сделать таким способом (труба в трубу) например раму для катамарана и все подобное. Ну вы понели
Аноним 16/03/16 Срд 00:16:31 1138 104
Что такое диафрагма?
Расскажите, пожалуйста.
Аноним 16/03/16 Срд 12:29:49 1139 105
Аноним 16/03/16 Срд 23:39:41 1140 106
Стандартный анон, помоги
Есть задание определить производный ряд предпочтительных чисел R20/3(14…450). Что бы это блять значило?
Аноним 17/03/16 Чтв 05:31:13 1141 107
>>1138
В каком контексте? У строителей так называют сетку из арматуры, которую потом заливают бетоном. Получаем армированную стену.
Аноним 17/03/16 Чтв 08:57:16 1142 108
529Кб, 3183x2249
3183x2249
Может кто помочь составить спецификацию по приспособлению? прост я не очень шарю из чего он состоит и как вообще писать спецификацию.
Аноним 17/03/16 Чтв 18:43:40 1143 109
19Кб, 625x896
625x896
>>1142
тупо переписываешь все составляющие детали. стандартные изделия (метизы, резиновые кольца и т. д.) пишешь отдельно. оформляешь как пикрил. всё
19/03/16 Суб 11:32:18 1144 110
161Кб, 798x1127
798x1127
117Кб, 798x1127
798x1127
>>1142
хуйня какая-то, не совсем ясно где и сколько каких винтов. Например, деталь 3 крепится к детали 17, а сколькими винтами 23?
Аноним 27/03/16 Вск 18:34:46 1151 111
САПР Инженерач,
накатил Автокад 2015 пиратский, если я поверх него установлю СПДС с официального сайта автокада, все встанет колом и мой автокад заблокируют? Где искать СПДС?
Аноним 30/03/16 Срд 05:39:45 1156 112
>>1144
> деталь 3 крепится к детали 17, а сколькими винтами 23?
Вывод: на чертеже сборочной единицы не хватает видов.
Аноним 03/04/16 Вск 09:50:07 1161 113
Сап, инженерач. Пришла в голову мысль разрабатывать и изготовлять кинетические скульптуры на подобии https://www.youtube.com/watch?v=1scj5sotD-E
И возник вопрос в какой кае системе лучше этим заниматься, сам юзаю Siemens NX CAM/CAD, но модуль кинематики мне там не очень понравился.
Собственно нужно задавать сопротивления на звенья учитывать массу и рассчитывать сколько система будет в движении при начальном усилии.
Аноним 16/04/16 Суб 06:19:26 1175 114
>>1142
Не указан тип и катет шва.
Аноним 01/05/16 Вск 14:26:34 1191 115
>>36 (OP)
только ебаный скам строит эпюры моментов на сжатых волокнах
Аноним 03/05/16 Втр 13:50:23 1195 116
Хм, особо не надеюсь получить ответа, но всеже, воркач. Если есть Живой, который может подсказать по сопромату дорог и кривых. Отпишись.
Аноним 03/05/16 Втр 13:51:21 1196 117
>>1161
продолжай юзать nx
Аноним 07/05/16 Суб 07:13:56 1201 118
1300Кб, 3328x1872
3328x1872
3 задание плиз
Аноним 07/05/16 Суб 21:48:26 1204 119
Аноним 12/05/16 Чтв 15:52:46 1211 120
Нужна психоэмоциональная поддержка.

Есть вариант подработки, расчёт теплиц, подбор сечений.
Но дело в том, что пока ещё младшекурсота и ещё не совсем вкуриваю, а деньги нужны очень. Вроде как смотрел видосы по солидворкс, это же просто, расчитать теплицу?
Расставить нагрузки, а програмка сама считает, или есть подводные камни?
Аноним 14/05/16 Суб 11:14:27 1221 121
>>1211
Программа за тебя не считает. Если ты не можешь это проверить ручным расчетом (хоть примерно), ты хуйло.
Аноним 14/05/16 Суб 16:45:11 1222 122
75Кб, 700x505
700x505
Аноним 14/05/16 Суб 17:33:26 1223 123
Как сделать металический стаканчик из жести диаметром 3 мм высотой 1.5? Как должна выглядеть пресформа? Пробывал плоским болтом выбивать все рвалось.
Аноним 14/05/16 Суб 20:35:49 1224 124
95Кб, 642x907
642x907
Привет. Нужна ваша помощь. Необходимо Разработать "Технологический процесс изготовления детали". Понимаю, что дело долгое и лично для меня сложное, но все же надеюсь на понимание.
Аноним 14/05/16 Суб 22:11:31 1225 125
>>1211
Можешь обратиться к анону, который тебе все посчитает в человеческой расчетной программе вместо солида, а ты подедишься бабосиком (половина бабосика вперед)
Аноним 15/05/16 Вск 03:14:32 1227 126
18Кб, 480x320
480x320
>>1222
А как ты думал? ))))))))))))))))))))))

Могу предложить тебе свои услуги.
50 евро в час, но с теплиц давай лучше перейдём на мосты, там гонорар больше.

Проиграл, как школота примитивные парники хочет в моделировать вбивать. Давай ещё объёмными fem элементами грунт под помидорчики смоделируй с расчётом напряжений от роста корневой системы, чтобы расчитать сколько арматуры нужно твоему горшку. или модель захуярь для сральника в саду и не забывай, что наклон должен быть, и вонь, и чтобы дверь криво весела, чтобы под стиль.
Аноним 15/05/16 Вск 15:42:17 1231 127
>>1227
Я не просил что-то делать за меня.

В универе мы выполняем стандартный расчёт какой-то ёбаной фермы. Вручную.

Если я могу посчитать ферму, разве парник сложнее?

Просто интересует, может есть какие-то нюансы, которые я не знаю.

Скажем, в универе расчёт фермы делается по шаблону, и там вполне может быть ошибка, которую препод не заметит, ибо ему пофиг.
А здесь есть вариант [вроде как простой] подработки, но за результат надо отвечать же.
Аноним 15/05/16 Вск 17:27:57 1232 128
>>1224
Для начала выбери заготовку, из чего ты ее будешь делать (листовой материал или из круга).
Я думаю, что из листа, потому что точность центрального отверстия и внешней стороны не высокая.
Разбери по поверхностям, которые обрабатываются (определить можно по шероховатостьям на чертеже).
Ну а дальше там фигня, фрезеровка, сверление, цекование.
Кстати, всю обработку можно на одном фрезерном станке сделать, даже на универсальном.
Аноним 15/05/16 Вск 17:29:38 1233 129
>>1232
Можно вообще, я думаю, все штамповать, а на обработку останутся только радиальные отверстия :)
Аноним 15/05/16 Вск 20:18:10 1234 130
>>1231
Тут ты сам должен оценить свои возможности.

Фермы для парников - дело вроде под силу студенту.
Только зачем их считать каждый раз? Обычно какая-то компания производитель парников делает один раз расчёты, а потом штампует тысячами свой продукт. Там работы на неделю максимум или ты чего-то не дорассказываешь?
Это же не мосты и не уникальные инженерные сооружения.
Аноним 15/05/16 Вск 21:04:17 1235 131
>>1232
>>1233
>>1233
Спасибо. Буду знать, от чего оттолкнуться.
Аноним 16/05/16 Пнд 09:01:03 1236 132
>>1234
Вроде как у них бывают индивидуальные заказы.
Аноним 17/05/16 Втр 17:26:03 1240 133
1762Кб, 4744x3308
4744x3308
>>36 (OP)
Анон, приветствую тебя. Сессия уже близко и мне нужна твоя помощь. Препод задал мне работу на деталирование для допуска к сессии. Для деталирования были даны следующие детали: корпус, прихват и пружина. Если с последней у меня не возникло трудностей вообще, то первые две позиции из этого списка ввели меня в ступор. Я вообще не понимаю, сколько и какие виды нужны и такие же вопросы насчет разрезов. Анон, прошу, выручай.
Аноним 17/05/16 Втр 21:37:32 1241 134
>>1240
Что это за хуйня вообще? 3D есть?
Аноним 17/05/16 Втр 21:39:53 1242 135
>>1241
Приспособление для фрезерования все, что я знаю, да
3Д нет. Это вообще скан с помятого желтого листа А3
Аноним 17/05/16 Втр 21:44:31 1243 136
>>1240
На картинке я так понимаю общий вид. Детали пронумерованы. Под какими номерами то, что тебе надо нарисовать?
Аноним 17/05/16 Втр 21:45:25 1244 137
>>1243
корпус (1) и прихват (3)
Аноним 17/05/16 Втр 21:57:15 1245 138
>>1240
Ну нахуярь для начала три стандартных вида на каждую деталь. Проставь размеры. А дальше смотри, если есть какая-то хуйня типа пазов, отверстий и т.д., которую нельзя образмерить на стандартных видах, то делаешь сечение и/или detail view (хз как это по русски) и образмериваешь.

Общая логика такова, что тупая рабочая обезьяна должна взять твой чертеж и смочь изготовить деталь без дополнительных вопросов к тебе как дизайнеру.
Аноним 17/05/16 Втр 22:02:25 1246 139
>>1245
Ладушки, я примерно так и собирался делать.
Можешь мне красным цветом обвести прихват, пожалуйста? А то я вообще не понимаю, где она заканчивается
Аноним 17/05/16 Втр 22:12:48 1247 140
>>1240
Немогу бро, я с телефона пишу.

Внимательно посмотри главный вид (слева сверху), вид сверху (под главным) и вид который справа сбоку.

Короче эта хуйня сверху прямоугольная и сужается конусом к низу. Внизу шарнир на котором она висит. Все вместе соединяет этот большой главный болт.
Аноним 25/05/16 Срд 15:47:09 1264 141
А есть тут инженеры-гидравлики?
На диплом надо начертать жидкотельные модели подвода и отвода насоса типа Д.
Вопрос слюдующий: КАК ВЫ ЭТО ДЕЛАЕТЕ? С преподом ебались над подводом оче много, в результате препод!! сказала, что не будет требовать его с нас, ибо оче сложно. Кто энтой хероборой занимался?
Аноним 02/06/16 Чтв 23:39:39 1308 142
46Кб, 676x369
676x369
>>36 (OP)
Сап антон. Где можно найти максимум информации по сверхпроводниковым индуктивные накопителям энергии?
Аноним 03/06/16 Птн 16:19:46 1312 143
>>1204
Думаю поздно, но сдал на 3
Аноним 11/06/16 Суб 15:21:08 1331 144
Инженеры, подскажите как присуждаются категории инженеро-богам?
Аноним 12/06/16 Вск 09:20:17 1334 145
>>1331
Зависит от страны. Если ты из бСССР, можешь глянуть классификатор профессий - там минимальные требования.
Но кое-где сейчас сертификация на категорию - опыт раьоты, спец обучение и экщамены. Дают печать.
Аноним 23/06/16 Чтв 09:04:24 1346 146
45Кб, 1174x842
1174x842
Я шкальник, не стукайте. Хочу запилить цикл Ибадуллаева на скуторе. Есть ли какая програмулина по проще, чтобы можно было удобно крутить фазы ГРМ? Желательно чтобы было как можно больше кнопочек "зделать чотка!". А то приходится всё в пэинте рисовать лол.
Аноним 26/06/16 Вск 16:55:55 1350 147
162Кб, 810x1080
810x1080
Можно вид в профиль этой штуковины? Хотя бы схематично. Добра и здоровья ответившему
Аноним 29/06/16 Срд 01:16:27 1351 148
>>1346
Бамп вопросу
Аноним 29/06/16 Срд 11:54:57 1353 149
Нужна помощь аноны, работаю на заводе слесаришкой и попутно на заочке сижу - на работе постоянно путаюсь с названиями всяких нех, типа - кулисы, втулки, гильзы, сухари, футорки etc. Уверен что дальше по учебе это явно будет, но нужно сейчас - что за предмет и как гуглить.
С меня нихуя, но своим ответом анон, в мире станет на одного человека грамотней, воот.
Аноним 29/06/16 Срд 12:52:59 1354 150
>>1346
Ни разу не слышал про цикл Ибадуллаева. Погуглив, скажу что это ерунда какая-то. Если вся идея заключается в том, чтобы выкручивать сильно отрицательный угол опережения зажигания, то:
а. Не факт, что получишь больше работы на КВ, чем затратишь на никому не нужное сжатие;
б. Не факт, что обеспечишь нормальное сгорание без радостного вылета пылающей газо-воздушной смеси в выпускной тракт с последующим сжиганием клапана и прочих менее интересных деталей;
в. Если у тебя не непосредственный впрыск, не факт, что бензин не сдетонирует от сжатия аки вода в известной копипасте;
г. Даже если несмотря на все предыдущие пункты это заработает, что ты хочешь от фаз газораспределения?
Аноним 30/06/16 Чтв 01:10:36 1355 151
>>1354
Погугли ещё, в ютубе особенно.

>а.
Нет. Усилие на сжатие будет почти всегда меньше, чем усилие рабочего хода. Тем более, что степень сжатия у меня будет относительно не велика (<20). А вот выигрыш от изменения усилия на плечо коленвала будет значительный.

>б.
На стоковых настройках да. Вот поэтому и нужно изменять фазы ГРМ.

>в.
Инжектор мог бы понадобится, если бы двигатель был с большей степенью сжатия (40,50,60 и выше), чем у меня. А так, от впрыска после ВМТ сразу перед искрой, может быть только хуже — ведь тогда пропускается целый цикл наполнения, а это время охлаждения камеры сгарания новой порцией топлива, у людей, пытающихся пойти этим путём, после нагрузки на двигатель начинается детонация(и то не сразу!). Фиксица это стендовыми испытаниями, чтобы электроника подгадывала момент детонации и предпринимала какие-то действия, вроде впрыска водно-спиртовой смеси и лампочки снизить обороты, плюс ещё нужна хорошая система охлаждения, топлива в том числе, датчики детонации и всё такое. Мудрить с этим мне пока сложновато, и охлаждение у меня воздушное, поэтому я просто ограничюсь небольшой степенью сжатия и обычным циклом наполнения (карбюратором).

>г.
см Б.

Вообще двигатель Ибадуллаева работает 100%, прирост кпд существенный, единственный его минус это сложность настройки в гаражных условиях, т.к. нужен стенд и электроника, и, возможно, ресурс стоковых деталей. Но вот почему никто не додумался до такой штуки раньше, почему не начали делать его промышленно сейчас, и почему пердуны-академики говорят "ВРЁТИ ЭТА НИРАБОТАИТ" вопреки готовым пруфам — это загадка.

Бамп вопросу про програмулину для двс.
Аноним 30/06/16 Чтв 13:42:39 1356 152
683Кб, 3264x1952
3264x1952
>>1355
Угу.
Слева термодинамическая диаграмма обычного бензинового двигателя, справа - по циклу Ибадуллаева.
Единственный способ, которым можно получить работу цикла (читай мощность) выше чем на нормальном двигателе - давать искру при объёме цилиндра меньшем чем объём камеры сгорания в нормальном двигателе (те при Vh Ибадуллаева > Vh стандартного). Таким образом ты просто увеличиваешь степень сжатия (заменяешь Vh нормального на Vh` нового при Vh`>Vh), а затем снижаешь эффективную степень сжатия запаздыванием зажигания (заменяешь Vh` на Vh нового, так что Vh` > Vh нов > Vh стд), но на столько чтобы она была больше чем в немодифицированном двигателе. И зачем? Можно либо сработать неиспользуемое сжатие и получить больше работы, либо не сжимать излишне вообще, и не тратить работу на это. Это на термодинамической диаграмме получается нулевая работа на сжатии-разжатии около ВМТ, на практике она будет отрицательна из-за утечек рабочего тела.

По поводу программы, да кто тебя знает, что ты там хочешь. Можешь попробовать в Дизель-РК покрутить свой двигатель, но я не уверен, что он будет считать при отрицательном угле опережения зажигания.
Аноним 30/06/16 Чтв 20:14:02 1357 153
>>1356
Прим: расписанно при постоянном Va для наглядности, на практике ты будешь изменять степень сжатия не увеличивая Vh, а двигая его влево, тем не менее.
Аноним 30/06/16 Чтв 22:11:07 1358 154
730Кб, 3264x1952
3264x1952
>>1356
Вот только ты не учёл того, что давление фронта пламени протекает не слишком-то линейно: (a)короткий розжиг, (b)интенсивное горение и догарание — самая максимальная работа (1)топлива при горении, (с)просто горячие газы, давление которых снижается(2). И у нас получается: в стандартном двигателе добрая часть самого максимального усилия(1') сгоревшего топлива передаётся посредством кривошипа в подпирание коленвала. А в Ибадуллаевском — на момент, когда рычаг шатуна максимален, всё уходит на вращение, и в этом кроется выигрыш.

>но на столько чтобы она была больше чем в немодифицированном двигателе
не обязательно, в момент вспышки СЖ можно сделать по стандартным значениям, или даже наоборот, снизить её, чтобы Vh сдвинуть ещё правее, если это понадобится, но это уже зависит от конкретного двигателя, насклько он "форсирован" с завода.

>Можно либо сработать неиспользуемое сжатие и получить больше работы
А как извлечь из цикла сжатия полезную работу? Максимум что можно с ним сделать, это снизить потери как ты и сказал, поставив инжектор и сделав впрыск после ВМТ и перед искрой.
Аноним 30/06/16 Чтв 22:13:02 1359 155
730Кб, 3264x1952
3264x1952
Фикс пикчи.
Аноним 01/07/16 Птн 12:52:16 1362 156
>>1358
>передаётся посредством кривошипа в подпирание коленвала
Формулу для работы подпирания не напомнишь?
Ну переместил ты кривошип вбок, да, момент будет больше, но только в одной этой области, а суммарная работа за цикл останется той же (если площади диаграмм одинаковые), либо меньше. Единственная "выгода" - меньшая равномерность момента по УПКВ. Возможно, удастся снизить мощность механических потерь, но оно того не стоит, у современных двигателей и так механический кпд порядка 80-90%.

>А как извлечь из цикла сжатия полезную работу
Не из цикла сжатия, а из неиспользуемого объёма около ВМТ, где происходит сжатие-расжатие в Ибадуллаеве. Извлечь просто - делать нормальный цикл.

Работа КВ за цикл = Работа ТД цикла - Работа мех потерь.
Циклом Ибадуллаева, ты либо режешь работу ТД цикла, либо увеличиваешь её самым нелогичным способом (работа тд цикла = площадь); и может быть слегка уменьшаешь работу потерь. В первом случае ты теряешь мощность, во втором получаешь прибавку, но меньшую чем мог бы при тех же модификациях двигателя и нормальном цикле.
Аноним 02/07/16 Суб 01:31:48 1363 157
>>1362
>Формулу для работы подпирания не напомнишь?
M=(F)x(L)=(F)x(r)x(sin a)
F - сила поршня
L - длина плеча
r - расстояние от оси коленвала до оси НГШ
a - угол поворота коленвала.
Соответственно, чем меньше угол поворота, тем меньший полезный момент, (тем больше силы улетает в опору коленвала).

>но только в одной этой области
а это и нужно

>а суммарная работа за цикл останется той же (если площади диаграмм одинаковые), либо меньше.
нет же, о чём я и толкую, она будет больше из-за изменившегося воздействия на кривошип.

>снизить мощность механических потерь
В кривошипе? Нет, они тут ни при чём, и их почти нет. Основная обратная противодействующая сила, направленная против работы двигателя, это сама езда транспортного средства. И вот если делать момент максимального сгарания топлива в момент когда рычаг кривошипа максимален — тогда будет существенный выигрыш.

>неиспользуемого объёма около ВМТ
Его нельзя использовать, т.к. там будет слишком большое давление для воспламенения топлива. Да это и не имеет значения, ведь главное, чтобы топливо сгарало полностью, а если конструкция цилиндр-поршень-камера сгарания будет это обеспечивать, то без разницы, сколько будет неиспользуемого объёма в верхней части после ВМТ, его там в любом случае будет не слишком много.

>Циклом Ибадуллаева, ты либо режешь работу ТД цикла
А она и не будет порезана, если сделать так, чтобы к НМТ топливо сгарало полностью.

>и может быть слегка уменьшаешь работу потерь.
Вот потери как раз таки сильно и убавятся, см выше. По сути двигатель Ибуделлаева это не колдовство с ТДцикла, а убарание паразитно маленького рычага в моменте кривошипа.

А ТДцикла после поджигания смеси будет абсолютно точно такой же, как на обычном двигателе.

https://www.youtube.com/watch?v=XTP37m123Xs&list=PL6O87849TRndcGzd6V79xUoR6312j24Ou
Вот здесь ещё об Ибадуллаевском двигателе есть.
Аноним 02/07/16 Суб 18:21:02 1364 158
108Кб, 601x850
601x850
Внимание, вопрос:
на этой дохлой доске реально найти инженеров-машиностроителей?
Аноним 02/07/16 Суб 19:18:55 1365 159
>>1364
Да, у тебя есть варики с калымом?
Аноним 02/07/16 Суб 20:35:34 1366 160
>>1365
А то! Ты из РФ?
Аноним 02/07/16 Суб 20:57:37 1367 161
>>1364
Инженер-конструктор по ремонтам оборудования итт.
Аноним 02/07/16 Суб 23:27:12 1368 162
>>1366
Мск, что там у тебя?
Аноним 02/07/16 Суб 23:36:09 1369 163
26Кб, 600x450
600x450
>>1368
>Мск
Поди запросы ояебу какие.
Аноним 02/07/16 Суб 23:50:53 1370 164
597Кб, 900x675
900x675
>>1369
Программер на них нужен иль оператор?
Аноним 03/07/16 Вск 00:36:11 1371 165
34Кб, 480x360
480x360
>>1370
Лол. А собрать свой собственный радиоуправляемый трактор с тралом не хочешь? Можно невозбранно копипиздить
Аноним 03/07/16 Вск 00:55:11 1372 166
>>1371
Доработать какой-нить маленький погрузчик можно. А вот собрать целиком для серии это геморно будет.
Аноним 03/07/16 Вск 11:24:25 1373 167
>>1363
>>Формулу для работы подпирания не напомнишь?
>Пишет формулу для момента
Яснопонятно. А знаешь почему? Потому что нет никакой работы подпирания. И силы подпирания нет.
Есть сила реакции опоры, она действительно возникает и достигает наибольшего значения в ВМТ, но она не совершает работы. Она вызывает силу трения в подшипнике, которая уже совершает работу механических потерь, о которой см предыдущий пост.

>силы улетает
Яснопонятно [2], силы там летают, зашибись. Про закон сохранения энергии слышал? "Сила", как ты называешь работу, не может улететь в никуда.

>а это и нужно
Зачем? Мощность та же, неравномерность момента по УПКВ больше - чтобы двигатель больше шумел и быстрее изнашивался?

>нет же, о чём я и толкую, она будет больше из-за изменившегося воздействия на кривошип.
Про закон сохранения энергии слышал?[2] Охренительно выходит у тебя, энергия химической реакции меньше, мех потери не уменьшаются, а с КВ снимаем больше. Откуда берётся?

>А она и не будет порезана, если сделать так, чтобы к НМТ топливо сгарало полностью.
Будет, см диаграмму.

>вот видео
Вот список литературы:
Двигатели внутреннего сгорания: Теория поршневых и комбинированных двигателей. / Вырубов, Иващенко, Ивин, под.ред. Орлина, Круглова - М.: Машиностроение, 1983.
Чистяков. Динамика поршневых и комбинированных двигателей внутреннего сгорания. - М.: Машиностроение, 1989.
Аноним 03/07/16 Вск 13:18:23 1374 168
>>1373
>Машиностроение, 1983.
>Машиностроение, 1989

Янопонятно, лол. Как там в 70-х?
Аноним 03/07/16 Вск 13:36:39 1375 169
68Кб, 800x533
800x533
>>1372
Верно. Вот смотри, я ничего не упустил? Команда по спасению мира:
1. Конструктор-машиностроитель
2. Электронщик
3. Программист
4. Механик
5. Сапёр/минёр со стажем
Аноним 03/07/16 Вск 13:40:03 1376 170
Нужен ОСТ 4.270.001 - Приборы электронные измерительные. Условные графические обозначения для замены надписей., в гуголе только за бабло, выручайте.
Аноним 03/07/16 Вск 14:30:52 1377 171
>>1375
Есть вероятность что позиции 1 3 4 смогут выполнить 2 человека а не 3.
Плюс нужен тот у кого есть бюджет на закупку. а так в целом верно.
Аноним 03/07/16 Вск 14:36:24 1378 172
76Кб, 839x291
839x291
Подскажите алгоритм решения задачи? спасибо,
Аноним 03/07/16 Вск 15:05:13 1379 173
>>1376
На донской есть магазин с гостами, если его не закрыли. ТАм можеш ознакомится с остами.
Аноним 03/07/16 Вск 16:29:14 1380 174
78Кб, 655x425
655x425
Аноним 03/07/16 Вск 21:19:11 1382 175
87Кб, 941x681
941x681
>>1380
Алсо, не проебите шанс, пока тема актуальна.
03/07/16 Вск 21:27:35 1383 176
>>1382
Черкани контакты, обговорим что ты предлагаеш.
Аноним 03/07/16 Вск 23:04:01 1384 177
48Кб, 730x454
730x454
>>1383
Вот фейкопочта:
[email protected]
распишу подробнее. Если не охладеешь к затее, то перекатимся куда-нибудь поудобнее.
Аноним 04/07/16 Пнд 11:13:01 1385 178
>>1374
>видосик, 2013 год
Яснопонятно, на дворе 2016, а они движки по теории из 13 рассматривают.

>Евклид, Начала, 300 д.н.э.
Яснопонятно, как там в прошлой эре?

Ты действитлеьно считаешь что фундаментальные законы термодинамики и механики поменялись за какие-то 30 лет? У меня для тебя плохие новости.

Давай делай свой цикл, не могу же я тебе запретить делать с твоим движком что-то, лол.
Аноним 04/07/16 Пнд 19:42:18 1386 179
Аноны, нужна помощь.
Подскажите название книг. Занимаюсь монтажем электросетей, т.е. прокладываем оптику, силовые кабеля, делаем расключку на шкафах автоматики. Нужна литература по теме, ибо только устроился и нихуя не знаю.
Аноним 08/07/16 Птн 18:29:03 1390 180
>>36 (OP)
Как сделать дробильную машину(пресс) что бы мог дробить бутылки в стекла (диаметром 3-4мм).Из подручных материалов .Подкинти идеи что купить как сделать.
Аноним 09/07/16 Суб 01:51:57 1392 181
>>1161
Top tier для таких задач это MSC Adams. Порог вхождения высокий.
Аноним 09/07/16 Суб 03:20:29 1393 182
44Кб, 600x400
600x400
Анон, я здесь за советом.
Будучи уже не шкальником я задался вопросом, на какой из двух стульев садиться.
Либо стать инженером-конструктором в какой-нибудь военной госконторе, либо строителем.
Поясните за плюсы и минусы каждого (ну и конечно про ЗП) ибо пока они привлекают меня в одинаковой степени.
про трудоустройство тоже интересно

заранее благодарю
Аноним 11/07/16 Пнд 18:23:53 1400 183
Вечер в хату. Началась учебная практика после второго курса, соответственно профилирующих предметов не было. Хз какую литературу юзать для написания отчета, принцип работы НПЗ, пока нужны ТС-цех, ЭЛОУ, АВТ. Преподша сказала юзать инет, искать лит-ру, хз где искать. Пока одно занятие прошло
Аноним 11/07/16 Пнд 18:52:52 1401 184
>>1400
вот капустина нашел. вроде годнота. Кто шарит, посоветуйте ещё чего, впереди лето
Аноним 16/07/16 Суб 15:22:05 1403 185
>>1393
>Либо стать инженером-конструктором в какой-нибудь военной госконторе
рандомхуя туда так просто не возьмут, особенно если ты амбициозный выпускник заборостроительного. Если ты говоришь о конструкторе-машиностроителе, а не конструкторе РЭА, окнечно
>либо строителем.
я бы стал строителем. Работа есть всегда, а не только когда минобороны захотело себе новую цацку на танк, можно съебать в частную конторку работать на дядю-строителя, полная свобода действий.
В стране, где машиностроение умерло с распадом союза, а строители гребут бабло лопатой - только в строители.
Аноним 18/07/16 Пнд 08:13:51 1404 186
>>36 (OP)
Поясните за лазерную резку, нужно приобрести головку для лазерного станка, а на ней абсолютно никакой маркировки. Есть ли сайты или соответствующая литература, дабы понять какая нужна, что бы заказать с али. Либо может кто знает где в России такие головки заказать? По приемлемой цене.
Аноним 18/07/16 Пнд 18:52:18 1405 187
38Кб, 450x600
450x600
>>36 (OP)
Чем так плох Инвентор, раз считается зашкваром, чем хорош Солид, кроме массовой поддержки в сети, и почему у Кати такой сравнительно корявый и недружественный интерфейс?

В первых двух поработал и даже делал простенькие сборки с кинематикой. Больше понравился инвентор (хотя обучают нас солиду). Третью не осилил даже на уровне скетча, это просто юникс какой-то, линукс образца 1990-х. Неужели она и правда гад-тиер, а я быдло, недостойное трогать святыню своими ручками?
Аноним 19/07/16 Втр 21:44:46 1406 188
>>1390
делаеш 2шестерни которые будут вращаться в разные стороны. Масса будет проходить через них, зазор определит габариты в одном измерении.
можеш добавить какойнить сито потом, чтоб отсортировать еще в одном измерении. Ну или рес + сито(или вместо сито использовать хуйню типа яйцерезки)
Аноним 19/07/16 Втр 21:47:15 1408 189
>>1401
нахуй преподшу шли. В отчете пишу - освоил новые навыки и все. xD
крому шуток шли ее нахуй
Аноним 19/07/16 Втр 21:48:05 1409 190
>>1404
они вроде одиннаковые
Аноним 20/07/16 Срд 10:08:15 1410 191
>>1409
А где их найти? Я на русских сайтах отдельно головки находил, но там совсем уебищные, по одной линзе. Мне надо с двумя хотя бы. Писал на али продавцу, он какой то ебанутый. Просит мою модель, я ему пытаюсь объяснить что модели нету, соответственно запрашиваю у него прайс мб какой нибудь, он мне отвечает просто и со вкусом - не знаю. Вот и весь наш диалог
Аноним 09/08/16 Втр 18:34:45 1437 192
23Кб, 1276x176
1276x176
Анон реши, молю, ответ 0,25 Н, почему - не пойму.
Аноним 10/08/16 Срд 19:47:48 1438 193
>>36 (OP)
2чь Сижу без работы
Есть небольшой опыт 7 месяцев Инженер-конструктор.
Вот сижу и думаю кем дальше работать...желания нет и хз что вообще нравиться
Может куда перекатиться на новый лад или пойти на завод разнорабочим а там зарекомендовать себя?
Аноним 11/08/16 Чтв 10:52:18 1439 194
Так сделай какое нибудь действие что бы определить что тебе по душе, раз уж не стоит задача просто заработать денег.
Аноним 16/08/16 Втр 12:31:53 1443 195
>>1438
Почему ушел с должности конструктора? Но собственному или пидорнули? Мне тоже работать до декабря, работаю на время декрета одной бабы. Но так-то постоянно с начальством общаюсь, так что, думаю, остаться на заводе проблем не составит.
Аноним 31/08/16 Срд 21:02:50 1454 196
>>36 (OP)
Аноны, отучился по специальности 110800, чё делать дальше, отовсюду гонят нахуй?
Аноним 31/08/16 Срд 22:08:39 1455 197
>>1438
>7 месяцев
рановато ты обосрался
Аноним 03/09/16 Суб 14:25:26 1456 198
пиздуй в преподы лол, учить таких же дебилов как ты
>>1454
Где живеш? сколько денег хочеш?
ЬЬ
Аноним 03/11/16 Чтв 01:50:38 1516 199
>>1454
Ох лол, я тоже агроинженер-бакалавр. Без опыта никуда не берут, думал уже пойти эникейщиком в мировую технику.
Аноним 03/11/16 Чтв 18:00:03 1517 200
>>1454
так и иди нахуй. лол, нахуя было выбирать спецу, по которой не знаешь, где потом работать??? дебилы, блядь...
Аноним 03/11/16 Чтв 19:40:43 1518 201
суп, поясните за изогнутые дисплеи, как влияют на работу в cad-ах, сильно искажают или вообще пох?
Аноним 05/11/16 Суб 09:07:05 1519 202
>>1518
Дрочую вопрос.
Аноним 05/11/16 Суб 23:05:24 1525 203
>>1518
Врядли кто то в них в кадах работает, какой в них смысл, кроме того что бы собирать блики со всех сторон?
Аноним 08/11/16 Втр 15:29:06 1528 204
>>1518
Выгоднее прикупить два ips моника,чем один изогнутый.
Аноним 10/12/16 Суб 20:51:11 1559 205
1410926772foto1[...].jpg 29Кб, 600x450
600x450
18785za706e2b2.jpg 41Кб, 600x450
600x450
chevyak.jpg 173Кб, 525x480
525x480
10102009-12-224[...].jpg 12Кб, 300x300
300x300
Мой глупый вопрос адресован анонам - конструкторам - машиностроителям, а именно, занимающимися проектированием передач.

Есть один момент, касающийся проектирования червячной передачи, и который в большинстве пособий и учебников (Курмаз, Батурин и т.д.) абсолютно не освещен.

Червячное колесо есть косозубое цилиндрическое колесо со скошенными зубьями, так? (пикрил 1).
Как рассчитать этот самый угол скоса зубьев?

На пикриле 4 (серенькое колесико) этот самый угол отсутствует. Почему? Или просто кажется, что его нет?

В каком-то из ГОСТов по червячным передачам я встретил определение "угол осевого перекрытия". Это он самый?
Аноним 12/12/16 Пнд 01:13:00 1564 206
>>1559
Так это угол подъема винтовой линии. Определяется по червяку.
Аноним 12/12/16 Пнд 19:08:24 1567 207
chevyak.jpg 86Кб, 525x480
525x480
mmJ2NXgBqfc.jpg 47Кб, 611x696
611x696
>>1564

Давай уточним - на пикриле 1 - он самый? Так это всего лишь угол подъема винтовой линии червяка??

О, как же все, оказывается, просто!

Спасибо, ананас, ты лучший!)
Аноним 22/12/16 Чтв 14:38:56 1578 208
>>1577
Отписал в другом треде. Но если кто то ответит мне на мой пост тут. Я не обижусь:3
Аноним 06/01/17 Птн 15:33:04 1586 209
Здрастите, где будет опасное сечение (Qоп, Mоп)?
Аноним 06/01/17 Птн 15:33:24 1587 210
Снимок.PNG 24Кб, 723x694
723x694
>>1586
пик отклеился
Аноним 06/01/17 Птн 18:42:50 1588 211
>>1587
У тебя же красными цифрами написано.
Аноним 08/01/17 Вск 19:00:26 1596 212
>>1587
Нужно посчитать эквивалентные напряжения в сечениях. Если на глаз - то у заделки.
Аноним 11/01/17 Срд 01:12:29 1597 213
Доска мёртвая, но мо ж кто увидет
Вернее не кто-то, а тот, кто хорошо разобрался в теме эволвентного зацепления.
По какой формуле можно найти длинну участка эвольвентной поверхности зуба, учавствующей в зацеплении? Чёт не могу такой нигде найти.
Ещё есть подозрение, что сумма этих поверхностей будет равна какой-то из окружностей шестернии и для нахождения искомой длинны можно разделить эту окружность на число зубьев умноженное на 2. Но какая окружность-тоже хз
Аноним 12/01/17 Чтв 16:25:05 1600 214
>>1597
Длину участка поверхности?? Ты определились что искать то хочешь. По твоему мнению ты хочешь найти длину в мм участка площадки контакта которая в мм^2
Аноним 12/01/17 Чтв 16:27:08 1601 215
>>1597
И да давай подробностей, а то я эти эвольвенты давно уже не трогал, в след раз зайду в сортир на работе, загляну.
Аноним 13/01/17 Птн 11:32:20 1602 216
>>1600
>>1601
Надо было найти "скорость перекатывания" поверхности одного зуба по поверхности другого, так что да, рассматривал это как плоскую задачу. Чтобы найти скорость нужно расстояние и время, время было, надо было расстояние.
Простой инженерной формулы, типа модуль умноженный на диаметр и что-то там-не нашёл. Разбираться в сложных мат выкладках было впадлу, поэтому тупо померял линейкой в программе, сильно увеличив масштаб, кек
Аноним 16/01/17 Пнд 19:16:59 1605 217
>>36 (OP)
Копирую из соседнего тхренда.
>Антоши, где можно нормально работающую катю скачать? Качал несколько версий с торрентов - активация со вставкой своего мас-адреса в один из файлов не взлетает. Заебался уже. Лицуха только в универе стоит, а хочется ещё и дома поработать.
Аноним 26/01/17 Чтв 12:00:22 1615 218
images.png 4Кб, 177x270
177x270
Господа инженеры!

Вопрос по резьбовым соединениями!
1) Соединение двух фланцев (крышка/корпус, например). Резьба в одном из фланцев сквозная. прикручиваем винтами один фланец к другому. Должно ли какое-то количество витков резьбы винта выходить из сквозной резьбы? Какое количество? Какой гост посмотреть?

2) Соединение болт/гайка. Аналогичный вопрос, какое кол-во витков должно выходить из гайки? Какой гост посмотреть?

Спасибо.
Аноним 27/01/17 Птн 10:11:02 1617 219
>>1615
Сопромат тебе в помощь. Но только для выбора длины гайки. Винт/болт берется из стандартных длин по ДИНам соответствующим, так, чтоб гайка на него накручивалась полностью. Этого достаточно.
Например: длина от полки, в которую упирается шляпка болта, до конца гайки 23мм, следовательно берем болт 25мм. Если 26мм - 30мм соответственно.
Аноним 27/01/17 Птн 14:31:52 1618 220
>>1615
Не менее 3 витков резьбы. Ищи нормативку на сборку. В каждой области она может быть своя.
Аноним 28/01/17 Суб 04:36:23 1622 221
>>1615
Нахуй вообще заморачиваться над этим вопросом?
Нужны габариты- хуярь впритирку. Не важны габариты - оставляй пару милиметров про запас.
>>1618 - Прав.
Аноним 06/02/17 Пнд 21:44:58 1636 222
lr397f3.jpg 31Кб, 600x531
600x531
124199-vms-Kine[...].png 53Кб, 1359x855
1359x855
Сап технач, нужна инфа по станку лр543мф4 (кинематические цепи, схемы, движения станка и т.д.)
Аноним 07/02/17 Втр 15:32:12 1646 223
>>36 (OP)
подскажите норм софт для нормирования и расчетов режимов резания, с меня 6 нормочасов в наряд
Аноним 07/02/17 Втр 23:31:03 1649 224
>>1636
И че ты думаешь, тут мы знаем про твой станок лучше тебя? ЛОЛ
Аноним 08/02/17 Срд 07:03:56 1650 225
Доброго, инженерьё. Сломал себе голову одной задачей. Необходимо отключать промышленную холодильную машину при протечке фреона. Вся проблема определить тот момент, когда машина даёт течь. Собрал устройство, которое находит пары фреона в воздухе, но от него толку нет, так как в одном цехе может стоять 5 холодильных агрегатов и все их отключать ясен хер смысла нет. По давлению тоже не замерить нихера. Подумываю врезать на вход и выход что-то типо датчика массового расхода воздуха. Ваши идеи?
Аноним 12/02/17 Вск 01:28:09 1657 226
>>1650
А почему по давлению то не замерить?
Аноним 13/02/17 Пнд 05:56:12 1658 227
Потому что оно не статично
Аноним 13/02/17 Пнд 09:16:14 1659 228
>>1658
>>1657
Тут лучше вот так делать. В избранном будет видно что ответили анону, и он зайдет в тредик.
Аноним 13/02/17 Пнд 13:29:34 1661 229
Первокурсота вкатилась в тред.
Учусь на химика-технолога, за семестр сделали дохлый чертёжик в компасе и всё.
В целом инжграфика у нас говно. Никаких объяснений, просто черти и всё. И сваливаются названия разных деталей на голову, а ты не ебёшь, что откуда и зачем.
Так вот, хочу освоить автокад плант. Или хемкад. В идеале и то, и то. Но им нас не учат тут, лол.
Стоит ли свои потуги в компасе продолжать, или он в большинстве случаев бесполезен на реальных предприятиях?
Где взять больше знаний о технологии и о деталях разных, опережая вузовскую программу? (А именно - механику, ПАХТ, ОХТ, СУХТП и всё прочее, может, существует что-то обобщённое?)
Аноним 14/02/17 Втр 02:57:21 1662 230
1347735551209.png 7Кб, 632x620
632x620
Реально ли инженеру-технолуху самолётики, ракетки от слова ракета на последнем курсе магистратуры найти что-то в ДС на полставки? Есть 8 месяцев опыта техником на сухом, есть соавторство в публикации по профилю обучения. Обзванивать всё равно буду заводы, просто интересно, как много раз я сосну. С факелом уже, видимо, соснул.
Аноним 10/03/17 Птн 13:03:55 1680 231
Аноны, помогите по термеху. 1 курс. Если кто может, напишите свои контакты. У меня вопросы по построению графиков.
Аноним 10/03/17 Птн 20:41:45 1681 232
Аноним 11/03/17 Суб 16:08:16 1682 233
>>1681
Спасибо. Я уже сам разобрался. На ютубе посмотрел видео, но если будут вопросы — напишу.
Аноним 12/03/17 Вск 01:20:49 1683 234
>>1661
Смотря кем ты после вуза работать собираешься. Если в проектный институт, то задрачивай автокад. Если на завод то врядли вообще имеет смысл напрягаться
Аноним 18/03/17 Суб 15:41:20 1687 235
b44864-2.jpg 108Кб, 1329x874
1329x874
>>36 (OP)
Как в паровом двигателе пар покидает цилиндр? В это проекции, если учитывать, что пар идет непрерывно, при выталкивании пара поступательным движением в сторону котла, он должен будет идти по той же трубе, по которой заходит новый пар.
Аноним 18/03/17 Суб 15:45:35 1688 236
>>1687
Всё, понял. Нашел другой чертеж, с объяснинем. Другой реквест - полный чертеж паровой машины. Подетально тобиш.
Аноним 03/05/17 Срд 00:16:42 1748 237
Сап, аноны, проблема с электрическими схемами: Есть в схеме некий элемент-Выключатель кнопочный ВБИ-М12-34С-1111-Л, прогуглил- оказалось что это индукционный бесконтактный датчик, нужно его обозначить из чего и вытекает вопрос- относится ли этот элемент к категории "кнопочнй с возвратом повторным нажатием"?
Аноним 11/05/17 Чтв 14:04:36 1749 238
Сап, инженераны, посоветуете книг по сопромату/материаловедению и по диффурам?
Аноним 11/05/17 Чтв 18:52:18 1751 239
>>1749
Дарков, Сопротивление материалов
Аноним 13/05/17 Суб 17:07:47 1755 240
>>36 (OP)
Вопрос по Ansys Mechanical APDL. Есть одна задача, я её решаю, но как узнать точное время (хотя бы мс), затраченное на её решение? В Output Window только непонятное CP и время до секунд, а нужно точнее.
Аноним 13/05/17 Суб 18:24:13 1756 241
>>1751
Спасибо, анон.
Аноним 14/05/17 Вск 11:37:26 1757 242
>>36 (OP)
Как првильно юзать канифоль при пайке? Натирать деталь, или просто тыкнуть паяльником в канифоль, потом в олово?
Аноним 14/05/17 Вск 19:54:28 1759 243
Привет, ребята, я тут мимоходом и по делу.
Вопрос в чём, есть значит одна фигура, плоская, но сложной формы размеры примерно 1м на 2м, и теперь мне нужно уменьшить масштаб этой фигуры до примерно формата А3, точность должна быть высокой, ибо будет склейка.
Как можно уменьшить масштаб, если нет этой фигуры в электронном виде?
На ум приходит разве что сфотографировать сверху и перекинуть на комп и там уже уменьшить.
Что думаете, инженеры, есть варианты?
Помогите, плиз.
Аноним 15/05/17 Пнд 02:01:19 1760 244
>>1755
Создаем макрос с таким вот текстом
get,t1,active,0,time,wall
solve
get,t2,active,0,time,wall
msg,ui,(t2-t1)3600
time of solution=%8i sec
Спасибо СергейД за это.
Аноним 17/05/17 Срд 10:06:01 1763 245
>>1757
>тыкнуть паяльником в канифоль, потом в олово
Это. Но думаю ты уже сам разобрался.

Не могу даже через проксю зайти в линкедин через хттпс, хотя всякие рутрекеры и грустнопанды работают нормально. ЧЯДНТ?
Аноним 17/05/17 Срд 15:11:17 1764 246
>>1759
Обмерить фигуру, методом позволяющим это с требуемой точностью, затем подобрать нужный коэффициент масштаба для того что вписать фигуру в нужный формат.
Аноним 22/05/17 Пнд 21:11:41 1794 247
Недавно узнал что одна фирма готова отвалить очень хорошие деньги за програму Steel Office. Завод стальных конструкций. Сами они не могут приобрести данный софт. Не продают именно им. Я думаю что не реально намутить такой специфичный софт иным способом. Да ещё наверняка там защита. Но все же... Может кто и подскажет?
Аноним 23/05/17 Втр 21:57:46 1796 248
AiRZhMigIZg.jpg 159Кб, 1280x945
1280x945
>>1794
Гайд как уехать лет на пять реквестируешь? Ловко.
Материалов тхред с вопросами Аноним 24/05/17 Срд 13:01:48 1800 249
Аноним 26/05/17 Птн 02:56:20 1801 250
http://rgho.st/85vlVKJ5T я тут ссылочку положу у вас, моя любимая мертвая доска
Аноним 26/05/17 Птн 10:30:37 1802 251
Аноним 26/05/17 Птн 22:51:50 1803 252
>>1796
Надо совсем охуеть, чтобы товарищ майор тут искал клиентов. Просто спросил. Сам не верю в это.
Аноним 28/05/17 Вск 14:27:40 1805 253
>>1802
Да там ничего интересного. Нужно было ответы на тестирование как то спиздить, а флешки небыло. Вот схоронил страницу. Пароль не дам
Аноним 28/05/17 Вск 20:06:45 1807 254
ЖРД.PNG 58Кб, 622x623
622x623
>>36 (OP)
Дурачок с завода с ССО ворвался в тред. Решил тут сварганить ЖРД. Начал, ессесно, с расчетов. Пока сижу с топливом. Есть пара кислород (Сжиженный) Как его получить я не ебу. Надеюсь, что пойму дальше по ходу работы.. При расчете массового состава смеси возникает проблемка - При подстановке параметров смеси выходит число <1, т.к. в окислителе нет ни углерода, ни водорода. Или тут другие формулы нужны. Алсо - попутно собираюсь читать учебник для техникумов и вузов - "Синярёв Г. Б., Добровольский М. В. Жидкостные ракетные двигатели. Теория и проектирование.". Но есть проблема - где достать материал по самому изготовлению? Явно понадобятся криогенные установки для сжижения кислорода, а их просто так не сделать. Это изложено в отдельных книгах по криогенике? Или лучше вообще на аутсорс в какое-нибудь КБ отдать? Просто я обычно работаю по чертежам и это для меня является проблемкой.
https://www.youtube.com/watch?v=1GeY0eahNAc&index=1&list=WL
Аноним 28/05/17 Вск 20:31:53 1808 255
>>1807
С пикчей и 1 вопросом отбой. Я забыл кислород учесть. Там ведь каждый элемент, присутствующий в топливе нужно учесть.
Аноним 28/05/17 Вск 20:34:00 1809 256
>>1808
Правда у меня получилось при сложении 0,997. Допустимо округлять до единицы?
Аноним 06/06/17 Втр 10:10:45 1813 257
Аноним 07/06/17 Срд 07:27:28 1816 258
>>1813
Как уебу тебя сейчас шитпостер ёбаный.
Аноним 12/06/17 Пнд 17:07:43 1819 259
Безымянный.jpg 63Кб, 835x512
835x512
Сап анон, есть фундаментная плита, как правильно обозначить армирование сеткой, нужно ли обозначать сечение арматуры кружками? И через сколько установок перекрытий можно начинать кладку?
Аноним 16/06/17 Птн 15:32:37 1820 260
orgSkhemaprimyk[...].jpg 671Кб, 3148x1800
3148x1800
В каком CAD лучше всего проектировать схемы ОДД?
Аноним 19/06/17 Пнд 14:29:11 1821 261
>>1820
В великом и ужасном
Аноним 19/06/17 Пнд 23:41:29 1824 262
Аноним 20/06/17 Втр 10:08:59 1825 263
Аноним 04/07/17 Втр 16:20:29 1833 264
Не знаю, туда ли я пишу или не совсем туда, надеюсь, что поможете. Есть инженерная вышка (механик), хочу вкатиться в проектирование ОВиК. Какие книги посоветуете? Смотрел в сторону курсов - но они, сука, пока дороговаты для меня, а я нищук. Искал слитые курсы - не нашел, а если и есть, то только Салавата Загидуллина, а там инфы мизер вообще. В общем, с чего начать?
Аноним 05/07/17 Срд 15:20:38 1834 265
>>1833
>ОВиК
Иди в магу на ТГВ
Аноним 04/08/17 Птн 11:03:41 1865 266
Есть ли знающие люди, которые могут поделиться режимами резания некоторых алюминиевых сплавов и сталей для всо?
Аноним 09/10/17 Пнд 22:40:19 1912 267
Металлофизик на связи. Вопрос таков: существует ли книжная серия/программа для инженеров, аналогичная Курсу теоретической физики Ландау-Лифшица? Или этакий "Технический (инженерный) минимум", ориентированный на прикладное применение? Что-то типа 40-томной энциклопедии "Машиностроение" (но это многовато). Можно на английском-немецком.
Аноним 16/10/17 Пнд 15:16:37 1914 268
Сап моя любимая мертвая доска. На связи студент пгсник 3курс. Вроде только сопромат научили считать да коробку двухэтажную по архитектуре рисовать. И тут резко КУРСАЧ по этой же архитектуре. Тема: "Бизнес центр в мухосранскнейм". Сказали собирать ГОСТы, эскизы и все такое в реферат, после сдачи онного можно приступить к проектированию. К преподу подходил задавал вопросы, отвечает односложно нихуя не понятно. Что из себя представляет этот БИЖНЕСЦЕНТР то? В какую сторону копать? Гуглил и так, и сяк, и как деловой центр. Самое подходящее из формулировок это "Офисное здание". Так вот вопрос, в ту ли сторону меня занесло и правильно ли я понимаю суть поставленного предомной задания? Где можно найти похожие проекты и подсмотреть как там все устроено?
Аноним 17/10/17 Втр 01:41:21 1916 269
>>1914
В библиотеку не пускают чтоли
Аноним 17/10/17 Втр 09:46:14 1917 270
>>1916
у меня даже читательского нету. Да и не думаю что я туда приду и смогу сформулировать что надо.
Аноним 19/10/17 Чтв 19:20:56 1920 271
>>1912
Маловероятно: прикладные и инженерные знания разрознены и, часто, у каждого автора/направления/предприятия своя специфика.
Аноним 19/10/17 Чтв 20:05:41 1922 272
snapshot00.23.jpg 688Кб, 1920x1080
1920x1080
Подскажите, что за софт?
Аноним 23/10/17 Пнд 23:17:35 1926 273
Аноним 23/10/17 Пнд 23:32:04 1927 274
Аноним 26/10/17 Чтв 14:53:48 1929 275
пикча.PNG 24Кб, 706x602
706x602
>>36 (OP)
Sup, что это за хуйня?
Аноним 31/10/17 Втр 11:17:00 1933 276
>>1929
Криворукое хуило показало три отдельных вертикальных отверстия (в перекрытии и/или стене) вместо одного общего.
Аноним 01/11/17 Срд 18:33:52 1934 277
На какого инженегра идти поступать и по какой специальности, чтоб извлечь максимум профиты? Пока что думаю пойти на общее направление "Машиностроение", но подозреваю, что это дно. 20 лвл, сейчас активно готовлюсь к ЕГЭ.
07/11/17 Втр 03:20:15 1940 278
Аноним 16/11/17 Чтв 17:04:15 1945 279
TrpqkldFPGw.jpg 249Кб, 1280x803
1280x803
yCtKgfiuKB4.jpg 206Кб, 1280x666
1280x666
nfDhGM-RstU.jpg 179Кб, 1257x613
1257x613
свпвап.PNG 26Кб, 717x579
717x579
Sup /ing/. В общем такая хуйня, я пиздоглазое мудило. Помогите построить линию влияния для поперечной силы Q. Чувствую чакрой что именно в ней туплю. По проверке выходит -2,25,а если через линию влияния то 1. Даже в онлайн решалку забивал кусок балки с реакцией шарнира, нихуя, должно быть -2,25
11/12/17 Пнд 18:31:18 1985 280
b04f53bd47[1].jpg 277Кб, 1936x1056
1936x1056
Есть несколько вопросов по тряпке.
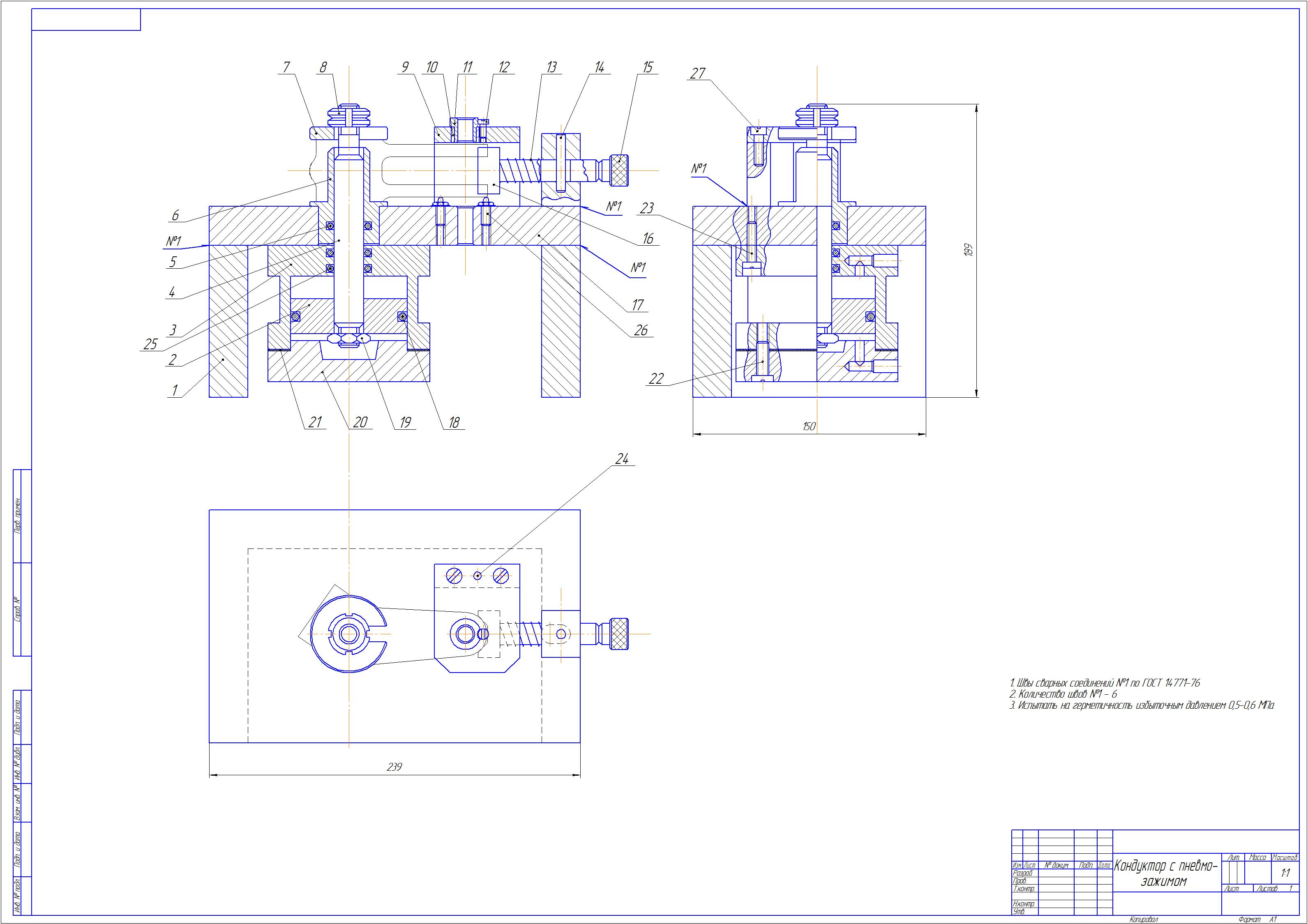
Поможете - скину полкосаря.
Актуальность~cутки.
11/12/17 Пнд 18:32:42 1986 281
ScetchUp

Не благодяри.
11/12/17 Пнд 18:33:01 1987 282
11/12/17 Пнд 18:34:19 1988 283
>>1662
> С факелом уже, видимо, соснул.
На факел никто в здравом уме не пойдет, так что это хорошо что тебя бортанули.
Аноним 17/12/17 Вск 10:39:08 1990 284
20171212181139-1.jpg 619Кб, 2842x1759
2842x1759
Не подскажите, что изображено на пике?
Аноним 17/12/17 Вск 15:22:26 1991 285
>>1990
Чет подшипников многовато
Аноним 17/12/17 Вск 16:48:13 1993 286
>>1990
Мастурбатрон какой-то.
Аноним 17/12/17 Вск 20:53:12 1994 287
image.png 51Кб, 534x592
534x592
Снимок 2.JPG 45Кб, 579x525
579x525
Здравствуйте всем. Помогите пожалуйста нужно сделать сборку я ее как бы сделал, но не до конца. Я нихуя не понимаю где здесь что штириховать, какие-то сечения, разрезы не понятно что делать. Еще и преподаватель весь семестр хуйней маялся нихуя не объяснял приходил давал какие-то бумажки и говорил делайте 3д ну и все на этом уроки компьютерной графики заканчивались. Кому не сложно просто накидайте линий где должны быть штрихи. Просто в среду уже зачет.
Аноним 18/12/17 Пнд 10:00:37 1996 288
>>1994
На главном виде сделай половину вида и половину разреза. То есть тупо разрежь посредине деталь и заштрихуй то, что разрезалось в левой части (правую оставь без изменений). Ну и этого, наверное достаточно, т.к. деталь простая.
На виде слева можешь местный разрез ебануть, чтобы показать сквозное отверстие. Правила оформления разрезов изи в гугле найдешь. Удачи.
Аноним 18/12/17 Пнд 10:03:04 1997 289
>>1994
И виды у тебя как-то странно расположены. Вид сверху должен располагаться на чертеже снизу от главного вида, а вид слева — справа от главного вида.
Аноним 18/12/17 Пнд 10:59:05 1998 290
Аноним 12/01/18 Птн 12:44:27 2021 291
Как быстро вкатиться в бим?
Аноним 27/02/18 Втр 02:37:16 2084 292
asdf.jpg 159Кб, 1115x835
1115x835
59ef60f048bb683[...].jpeg 98Кб, 960x540
960x540
Чет одни механики тут, разбавлю проектировкой белого человека и спрошу за одно хотя один хуй никто не ответит, что там по Комсолу? На гиктаймсе в их блоге рекламируют возможности по расчету оптики, есть кто вкатывался?
Аноним 01/03/18 Чтв 20:18:42 2088 293
15198342371710.jpg 690Кб, 1292x969
1292x969
Инженеграч, будь няшкой, промоделируй мне воздушные потоки от кулера пикрелейтед. Зашел спор с одним дебилом в /hw по направлению воздушного потока, этот дегенерат говорит что поток воздуха будет направлен вбок, я же утверждаю что поток воздуха преимущественно будет направлен вниз. Понимаю что он школьник и хуйло, и ваще оно того не стоит, но пиздец как с него горит.
Аноним 01/03/18 Чтв 23:30:06 2089 294
>>2088
Включи его и дымом от сигареты или вейпа проверь, нахуя усложняешь
Аноним 01/03/18 Чтв 23:34:05 2090 295
>>2089
Не получится, дым/пар будет виден только со стороны всасывания, со стороны выталкивания даже кулер 20х20 рассеивает хороший напас с дрипки до такой малой плотности что нихуя не понять векторов воздушных потоков.
Аноним 03/03/18 Суб 16:49:32 2092 296
ТП-план.png 54Кб, 660x929
660x929
Инженерач, я хочу запилить теплый пол от полотенцесушителя (обратки горячей воды), этаж 4/5. Чтобы совсем уж не быть ебаным быдлом, не оставлять соседей с холодным полотенцесушителем и не разбалансировать гидравлику сантехникам хочу подключаться через узел подмеса с циркуляционным насосом. Только не обоссывайте, такую схему даже узаконить можно вроде бы, но много бумажной ебли - не хотеть. Сделаю по-тихому, но по-красоте, атвичаю. Коммуникации не меняли с момента постройки (семидесятые года), так что вряд-ли проводят ебовые гидроиспытания.
Длина петли ~60м, общая площадь 14 квадратов. Изгибы петли 40(R20), 5(R10) 2(R30) R - радиус
Схема петли пикрелейтед. Возле входной двери (снизу слева) и окна (сверху по центру) шаг 100мм, остальные участки с шагом 200мм. Асимметрия нижней петли обусловлена парковочным местом для обуви (спецом для зимнего сезона). Расстановка мебели учтена, петля идет только по проходной площади.

Правильно ли я все сделал, какую рекомендуете трубу кидать и какой мощности нужен насос чтобы ее прокачать? Я безусловно сам посчитаю, но мне нужно второе-третье мнение для верификации.
Аноним 05/03/18 Пнд 19:50:03 2096 297
>>2090
файером дунь
Аноним 13/03/18 Втр 09:40:05 2106 298
скачанные файлы.png 3676Кб, 1026x1536
1026x1536
Сап, инженерач. Вопрос к электрикам. Дома беда - если коснуться корпуса посудомойки и раковины то ощутимо бьет током, больно так, пздц. Проводка двухжильная, алюминиевая. Переделывать проводку до посудомойки не вариант, в коридоре недавно сделан ремонт.
Написал на авито одному электрику типа можно ли поставить УЗО или диф.автомат или что-нибудь чтоб не ебашило так. Он говорит что можно конечно, но будет вырубать всю квартиру и для техники это не хорошо, хотя мне, если честно, тоже не хорошо когда меня током бьет и вообще, можно же поставить узо только на ту ветку проводки которая к посудомойке идет?
Ну короче этот электрик мне говорит - заземляйся на батарею, чувак, прям блять провод защитного заземления от розетки кидай на предварительно зачищенную батарею и не будет тебя бить и все будет хорошо хотя в этих ваших интернетах говорят что это нихуя не панацея и там подводных камней может быть очень дохуя, с батареей-то
В общем я наверное это дело попробую, но хотел бы все равно спросить советов мудрых - как в доме с двухжильным алюминием добиться того чтоб не било, без переделки проводки?
Пикрандом
Аноним 13/03/18 Втр 19:59:47 2107 299
схема.png 19Кб, 1050x550
1050x550
>>2106
УЗО тебе правда не поможет. То есть, либо тебя по-прежнему будет пиздить, либо при каждом прикосновении оно будет вырубаться. На одну ветку поставить можно, тогда будет вырубать только посудомойку, но смысла в этом мало.

Заземлять к батарее смысла мало, слесаря любят менять металлические трубы в подвале на пластик. Вообще, раз пиздит конкретно при прикосновении к посудомойке и раковине, лучше соедини именно их. Но решение тоже так себе, от заземления на водопроводные трубы эти самые трубы в разы быстрее гниют (и трубы отопления тоже).

ИМХО, единственный нормальный способ сделать заземление при старой двухпроводке - УЗО + реле контроля напряжения, см. пикрил. Раз по хате тоже двухпроводка, РКН/пускатель можно поставить на вводе, а разделить нейтраль на N и PE уже около посудомойки + там же поставить УЗО (можно даже форм-фактора вилка-розетка).
Но это не очень дешевое решение, да.

А вообще вопрос для /dom, посмотри электротред, может найдешь чего.
Аноним 13/03/18 Втр 23:35:52 2108 300
210504970.jpg 42Кб, 640x480
640x480
Нужен чертеж редуктора кислородного балона
Аноним 15/03/18 Чтв 09:36:36 2109 301
>>2107
Спасибо за советы.
А где продаются УЗО вилка-розетка? В леруа не нашел, в кастораме тоже, даже в электромастере нет. Кто таким торгует то?
Аноним 15/03/18 Чтв 19:58:25 2110 302
>>2109
Надо же, тоже не нахожу. Раньше видел в ЭТМ и паре местных магазинов, даже не ожидал, что это такая редкая штука. В качестве альтернативы можно взять УЗО в разрыв провода (ставятся на водонагреватели и продаются в местах с запчастями для оных), ну или мелкий двухюнитовый бокс с обычным УЗО, если есть место.
Только прежде чем все это колхозить, надо бы тебе вооружиться мультиметром и проверить:
- исправность посудомойки, а именно сопротивление между корпусом (заземляющим контактом) и контактами вилки. Норма - несколько сотен килоом, если оно меньше, чини ее, пока не уебало посерьезнее.
- наличие напряжения между нулевым проводом и раковиной. Под напряжением может быть сама раковина, лол.
- внезапно, наличие самого нулевого провода. Бывают и две фазы в розетке.
- для порядка, напряжение между корпусом посудомойки (включенной в розетку) и раковиной, то есть то, которым тебя пиздит. Если около 110 вольт переменки, то это обычная ситуация.

Да, и что из себя представляет проводка в подъезде? Может, там уже есть заземление, и тебе не надо разводить колхоз?
Аноним 19/03/18 Пнд 08:42:31 2111 303
>>2110
На выходных забыл сделать все что ты просил, но схоронил твои ответы в блокноте, скоро попробую все сделать. Спасибо за советы, мужик!
Аноним 21/03/18 Срд 17:28:08 2112 304
5454545.jpg 53Кб, 596x602
596x602
Вопрос:

Имеем вал с резьбой М20 и резьбовое отверстие м20 они при измерении дают одинаковый размер 20 мм. А теперь вопрос, как болт не проваливается в гайку и зацепляться друг с другом? Что я упускаю?
Аноним 22/03/18 Чтв 01:30:50 2113 305
>>2112
А ты померь штангенциркулем резьбовое отверстие м20, там точно не меньше, чем на валу?
Аноним 25/03/18 Вск 02:51:21 2117 306
>>2112
Лол,посадки посадочки
Аноним 25/03/18 Вск 16:33:23 2118 307
>>2112
сукаааааааааааааааааааааааааааааааааааааааааааааааааааааааааааааааааааааааааааааааааааааааааааааааааааааааааа
Аноним 25/03/18 Вск 16:34:54 2119 308
>>2108
скока заплатишь?
что за редуктор, какой чертежь?
скинь почту, обкашляем.
Аноним 26/03/18 Пнд 17:47:07 2120 309
Сап сопромач.

Работаю по вахте анжинером-электроником. Имею прямые руки и умею ими работать - щитки квартирные собираю, электрику делаю.

Хочу научиться делать проекты по электрике, чтобы предоставлять клиентам сервис полного цикла - от расчета до физического воплощения, а если попрёт, то вообще забить хуй на работу руками. С ПУЭ знаком, рассчитать всё могу, но как это оформляется и какие мне нужны разрешения на осуществление такой деятельности - ни в зуб ного. Гугление результатов не дало.

Где этому учат? Как начать такого рода "бизьнес"?
Аноним 27/03/18 Втр 21:22:17 2122 310
>>2088
Возьми тонкий отрез бумаги. По величине отклонения можно будет сравнить потоки. Приблизительно, конечно.
Аноним 16/04/18 Пнд 19:07:50 2137 311
Сап. На связи так называемый инженер. Работаю над установкой мехиспытания гидродавлением при температуре 350-450 градусов. Нагнетаем силиконовую жидкость в образец пока тот не лопнет. Проблема в том, что эта силиконовая жидкость не устраивает - испаряется. Она осталась от похожих работ 20 летней давности. сейчас надо найти новую, попробовал загуглить - не вышло. Подскажите какую-нибудь жидкость, ртуть не предлагать
Аноним 16/04/18 Пнд 20:33:23 2138 312
image.png 220Кб, 1600x900
1600x900
image.png 176Кб, 1600x900
1600x900
>>36 (OP)
Хелп, инженерач. Хз знает что происходит с компасом. Почему сместился и исказился весь тест на чертежах? При том что на других компах все отображается нормально. Переустановка компаса не помогает. Что делать?
Аноним 19/04/18 Чтв 19:04:36 2144 313
http://docs.cntd.ru/document/1200104690
> 5.1.5 При выполнении графических документов применяют шрифты по ГОСТ 2.304, а также другие шрифты, используемые средствами вычислительной техники, при обеспечении условий доступности этих шрифтов пользователям документов.
Значит ли это, что я могу использовать Comic Sans Arial в чертежах?
Аноним 20/04/18 Птн 01:01:12 2145 314
>>2144
Ты можешь и в жопу ебаться, но мужики не поймут я про шрифт
Аноним 13/07/18 Птн 07:37:41 2210 315
Надеюсь, раздел еще жив.
Вопрос есть касательно термообработки полиамида (он же капролон). Конструктор заказал огромный кусок говна под свои дитоли, несколько дней мы думали, как его резать. Теперь перед фрезерной обработкой надо бы снять напряжения (кусок 120мм толщиной)
Пока решили поместить его в 7 утра в водонагреватель, и чтобы часов в 17 токарь, уходя, выключил водогрейку и оставил охлаждаться.
В общем, нужна помощь опытного инженегра.
Аноним 13/07/18 Птн 09:47:43 2211 316
Сапдвач, хуй знает куда идти, пришла сюда с этим вопросом.
Есть бетонная стяжка одна штука.
Есть эпоксидный двухкомпонентный грунт(типа пропитка)
Чтобы бетон больше ничем не заливать и он при этом не пылил.

Стоит задача повысить марку бетона. Без дополнительного утолщения стяжки. То есть не заливая ни новую стяжку с топпингом, ни покрывая чем-то еще что прибавляет мм к полу (читай наливной пол)
Как нахуй он себе это представляет?
Марка бетона останется той же хоть ты его 85 раз пропитай говном, разве нет?
Да, мм8 пропитаются и будут покрепче, но это же только 5-8 мм и это не моча супермена,а сука всего-лишь эпоксидный грунт.

Сори за тупой вопрос, но на работе мне никто не может дать ответ, а заказчик заебал. У меня все.

В принципе про повышение марки уже положенного бетона таким образом вообще нихуя адекватной информации не нашла в гугле, мб чечик просто ебанутый или я ебанутая
Аноним 13/07/18 Птн 09:51:21 2212 317
>>2211
уточню.
я прекрасно понимаю, что пропитка грунтом увеличит долговечность, повысит водонепроницаемость и проч, вопрос заключается в том, какой станет марка бетона после нанесения такой вот хуйни?
и можно ли это как-то измерить на уже сухой стяжке?
класс ебаного бетона.
Аноним 17/07/18 Втр 14:15:24 2218 318
>>2210
это юмор такой?
Аноним 24/07/18 Втр 14:19:10 2224 319
Привет инжинеры, я закончил шарагу, теперь у меня встал вопрос куда поступать. Из трех стульев осталось два: 1)электропривод и автоматика, 2)электроснабжение
с чем жизнь связать? или вообще уйти с этого направления и стать строителем?
Аноним 20/08/18 Пнд 05:16:16 2259 320
>>36 (OP)
>>14 (OP)
Посоветуйте видеоуроки по юниграфикс. Компас относительно знаю.
Аноним 06/09/18 Чтв 09:09:50 2274 321
Здравствуйте, уважаемые. Мне необходимо научиться делать трехмерные модели домой (в дальнейшем конструкций). В какой проге лучше всего это делать? На работе после гостей из ОБЭПа остался только православный нанокад.
Аноним 08/09/18 Суб 20:42:40 2275 322
>>36 (OP)
есть вебкамера и линзы, дайте толковый гайд как запилить микроскоп и какие линзы лучше использовать и как смотать изолентой, вот ето всё
Аноним 09/09/18 Вск 22:41:50 2276 323
>>2275
1. покупаешь дешевую вебку с ручным фокусом
2. выкручиваешь объектив
3. закручиваешь обратно задом наперед
4. профит!
Аноним 12/09/18 Срд 14:33:29 2284 324
>>2276
не работает ето дерьмо - наебалово
Аноним 01/10/18 Пнд 18:33:58 2314 325
>>1232
Да на плазме вырезать из листа 8ки с припуском по внешнему/внутреннему диаметрам. Плазмой же накернить отверстия. На токарном на розжим - обрабатываем плоскость и наружный диаметр. переворачиваем - другую плоскость, внутрнний диаметр и фаску. на сверлилке сверлим и цекуем.

Не знаю зачем я это написал
Аноним 04/10/18 Чтв 13:14:58 2317 326
шалом, можно ли как-то саморазвиваться в чпу с перспективой найти работу, или придется опять в нептуаколледж идти, ради обоссаной корочки, которая хуя дроченого не стоит?
Аноним 15/10/18 Пнд 23:00:45 2323 327
Как найти момент, который создает пружина кручения расчетным способом? Есть её геометрические параметры, есть рабочий угол на который усик отклоняется. В Анурьеве рассказывается про максимальный рабочий момент, о зависимости с углом упоминания не увидел.
Аноним 10/08/19 Суб 14:58:24 2471 328
ХЕЛП ПЛИЗ!

Не инженер не разу, по жизни вообще теор физикой занимаюсь, н о волей случая, работаю в федеральном учреждении доп инженерного образования для детей, работаю собстно лаборантом в инженерном цехе, полном высокотехнологичного оборудования - чпу станки(лазеры, фрезеры, токарные), 3д принтеры и куча других станков и ручного инструмента. Должность моя лаборант и вследствие ощутимой безграмотности в этой сфере испытываю дичайшую необходимость в кратчайшие сроки приобрести скиллы работы на всем этом, можете покидать пособий, плейлистов на трубе, книжек и всего чего хотите, что по вашему мнению быстро прошаривает в определенной области инженерного дела.
Аноним 15/08/19 Чтв 11:06:56 2472 329
>>36 (OP)
Нашел работу. Но там в основном 3д. А на своем месте в основном 2д работал. Осилю?
Аноним 13/10/19 Вск 22:04:10 2490 330
Сап инженерач, весной буду проходить практику помощником технолога на предприятии машиностроительной отрасли. До этого проходил практику токарем, с тех пор немножко подрастерял знания. Хотел бы спросить, какую литературу почитать, чтобы разбираться в станках и их оснастке. Посоветуйте годных пособий по ТКМ, по материаловедению и связанным предметам. Помню только препод как-то говорил "у вас на столе всегда должен лежать Справочник технолога-машиностроителя, это ваша Библия". Буду очень благодарен
Аноним 01/11/19 Птн 15:55:05 2503 331
>>2323
Три варианта. Ищи литературу по расчету пружин. Просто измерь. Возьми софт, смоделируй пружину, посчитай (либо исходя из единичного перемещения или единичного усилия). Софт любой подойдет - задача примитивная.
Аноним 01/11/19 Птн 17:17:11 2504 332
Добрый вечер технобоги.
Вопрос, как рассчитать количество витков на резьбе, зная высоту и диаметр изделия, З.Ы основная задача чтобы гайка вставала всегда в одно и тоже место
Аноним 02/11/19 Суб 21:42:29 2506 333
Ищу человека, который время от времени будет помогать с инженерной графикой. (1 курс, кадастровый инженер) задания не сложные.
Аноним 02/11/19 Суб 21:45:23 2507 334
Screenshot2019-[...].png 315Кб, 1080x1920
1080x1920
Пример задания.
Аноним 09/11/19 Суб 22:46:24 2512 335
ророор.png 104Кб, 556x861
556x861
>>2507
Денег предложишь?
Аноним 09/11/19 Суб 23:20:37 2513 336
>>2512
Смотря сколько.
Аноним 25/11/20 Срд 21:47:50 3224 337
dopusk-kvalitet.jpg 101Кб, 600x506
600x506
Уважаемые господа конструкторы, у меня к вам довольно простой вопрос. Не могли бы объяснить мне, простому глупому человеку, что такое квалитеты - как их понимать и зачем они нужны? Я на своих чертежах все допуски обычно указываю односторонние/двусторонние, что-нибудь типа +-0,2 или +0,05 и т.д. На большинстве старых российских чертежей пишут что-нибудь вроде H14/h14; в зарубежной же документации, даташитах и проч. обычно указываются двусторонние допуска (как и у меня). Не видел квалитетов в зарубежных чертежах, в общем.
Какая от них, собственно, польза, и как их понимать? Есть ли смысл их использовать? Или это какой-то пережиток советского прошлого?
Аноним 18/12/20 Птн 17:11:12 3239 338
>>3224
>На большинстве старых российских чертежей пишут что-нибудь вроде H14/h14
>старых
Ле пиздец. Господь, жги, тут уже ничего не исправить.
Аноним 18/12/20 Птн 21:03:05 3240 339
>>3239
и в чем же причина твоего внезапного острого рессентимента? В том, что человек не умеет понимать квалитеты? Или в том, что он называет чертежи, прощу прощения, "старыми"?
Аноним 18/12/20 Птн 23:34:08 3241 340
>>3240
И в том, и в том. Квалитеты - это основа взаимозаменяемости, блять. Это способ сделать так, чтобы детали собирались только с зазором или только с натягом, а не то так, то эдак, как звёзды сойдутся. Это способ, чтобы установленные подшипники служили ровно столько, сколько у них в паспорте написано, а не разлетались через месяц работы. Ну и да, называть единую систему допусков и посадок, гармонизированную со стандартами, ISO старой - тоже эпик фейл.
Выходов тут ровно два - либо немедленно читать ГОСТы и учебники, либо катапультироваться из профессии, чтобы не убить или не покалечить людей.
Аноним 19/12/20 Суб 18:45:45 3243 341
>>3241
Так, насчет причины рессентимента ты объяснил достаточно подробно. А как насчет более ранних, и более важных вопросов, о которых был мой пост выше: 1) Как понимать квалитеты? (и применимы ли они, если сопрягаемые поверхности двух деталей представляют собой не просто отверстие и входящий в него стержень, а что-то более сложное?) 2) Почему в иностранной документации вместо квалитетных допусков наблюдаются обыкновенные двусторонние/односторонние? Какое преимущество указать квалитет вместо обычного поля допуска?

Или ты снова вместо нормального ответа и объяснений будешь хвататься за голову и причитать в стиле "о, молодешь-та нонешняя пошла..."
Аноним 19/12/20 Суб 21:11:18 3244 342
image.png 15Кб, 681x192
681x192
image.png 109Кб, 640x340
640x340
>>3243
>и применимы ли они
Конечно применимы. Поле допуска всего лишь определяет верхнее и нижнее отклонение величины размера от номинального. И поебать, диаметр это или длина.
>Какое преимущество указать квалитет вместо обычного поля допуска?
Преимущество такое, что если ты заглянешь, блять, в ЕСКД, в 2.307, то увидишь там первый пикрилейтед. Чуешь в какой последовательности указаны методы нанесения предельных отклонений? И да, измерительные инструменты для котроля размеров, всякие там калибры-пробки и калибры-скобы изготавливаются для и маркируются условными обозначениями полей допусков - см. второй пикрилейтед.
>Как понимать квалитеты?
Что значит как понимать? Дохера умные метрологи когда-то давно придумали статистическую теорию, по которой все степени точности изготовления размеров деталей разделили на 18 квалитетов. Чем выше квалитет, тем точнее и дороже. Для разных сборочных задач придумали различные положения поля допуска относительно номинала, вместе образующие либо гарантированный зазор, либо переходную посадку, либо гарантированный натяг. С чем более высоким квалитетом изготовлено поле допуска, тем стабильнее величины зазора или натяга от одного образца изделия к другому.
Ты только, блять, не думай, что буквенно-цифренное обозначение поля допуска - единственное. Доминирует оно именно для валов-отверстий и всяких пазов, шпонок, шлицев и прочих распространненных конструктивных элементов. Для каких-нибудь свободных габаритных размеров, для положения отверстий доминирует твое простое обозначение "плюс-минус".
Аноним 22/12/20 Втр 12:34:15 3246 343
Может ли заклинить какой нибудь серьёзный шестерёночный механизм, например коробку передач, и отчего. Так же вот у нас есть двигатель состоящий из одного поршня, коленвала и маховика. Вот начинается такт впрыска, сжатие, взрыв. Вопрос вот в чём, ведь маховик такой большой и обладает инерцией, как происходит его раскрутка, ведь рабочий ход у поршня строго определённый, а вдруг ему не хватает силы раскрутить маховик, что вообще происходит?
Аноним 24/12/20 Чтв 09:47:07 3247 344
По каким сводам правил и методикам делаются расчеты необходимого теплопотребления эксплуатируемых зданий?
Аноним 28/12/20 Пнд 23:39:19 3250 345
15997640435490.jpg 21Кб, 604x417
604x417
Дублирую из треда про кады.
Господа инженегры.
Посоветуйте зеленому энтузиасту софт подходящий.
Вкратце нужно делать модели сборочной линии и автосклада.
Смотреть как это работает в сборе, например головка снимающая со складской ячейки деталь, висящую на универсальном креплении.
Аноним 08/01/21 Птн 06:21:36 3254 346
image.png 1968Кб, 1000x805
1000x805
подскажите тупому гумманитарию как устроены эти джоинты?

где то просто пальцы-болты и пластиковые втулки, но ведь плоскости двух металлов труться, почему там нет упорных подшипников!?
Аноним 08/01/21 Птн 09:10:19 3255 347
>>36 (OP)
что почитать о расчетах на прочность, материалах, 3д моделирование, может курсы онлайн по начерталке, тмм, дм какие и где?
спасибо
Аноним 14/01/21 Чтв 13:51:09 3260 348
Я шкила, этим летом сдаю экзамены и поступаю в вышку. Какие направления есть смысл рассматривать, какие будут актуальны в РФ в ближайшем и не очень будущем?
Аноним 20/01/21 Срд 18:55:16 3265 349
>>3260
> будут актуальны в РФ
нефтянка(разведка добыча)
мусарня

ну и классика -- код - менеджмент - маркетинг
Аноним 24/01/21 Вск 19:07:25 3266 350
>>3265
>менеджмент - маркетинг
Не шутишь? Мне казалось, что это максимально никакие направления, куда идут если больше некуда.
Аноним 26/01/21 Втр 22:10:49 3267 351
>>3266
это неотъемлемые части производства продукта

другой вопрос что на этой профе может быть как тупая пизда, так и виртуоз

ин эни кейс без них в большой компашке никак


да и как я написал выше, больше некуда, нефтянка военка и разработка -- всё!

безнес в рашке ну такое..
Аноним 28/01/21 Чтв 23:32:49 3268 352
>>3266
От толковости менеджера проекта зависит дохуя и больше. Кто ещё будет пинать ленивых инженеров делать свою работу, а не кудахтать про невъебенный объем и сложность выпуска нового документа, в котором отличий от такого же старого в предыдущем проекте полторы строчки? И да, чтобы менеджера нельзя было наебать такими нехитрыми способами, он должен дохуя понимать в том, кто чем занят и в чем чья работа состоит. Как правило, это достигается некоторым опытом тягания исполнительской лямки проектировщиком, что позволяет видеть очень многие движения информации по проекту, да ещё и на собственной шкуре прочувствовать реальный уровень бюрократии. Но таких людей буквально единицы, зачастую они аки ракета стартуют в топы, где работа уже совершенно другая.
Маркетологи - результат отрыжки рыночка. По сути они просто наябывают покупателя, вынуждая покупать твое говно, а не точно такое же от конкурентов.
Аноним 01/02/21 Пнд 19:17:34 3269 353
Что в обратной кинематике с использованием матрицы Якоби подразумевают угловой скоростью? Вращение вокруг мировой СК в порядке XYZ?
Аноним 06/02/21 Суб 02:39:15 3270 354
image.png 120Кб, 692x481
692x481
Посоны какой двутвар нужен чтоб выдержать вес в 3 тонны при пролете 3 или 6 метров между опорами?
Таблица сравнения ПО Видеонаблюдения 09/02/21 Втр 15:53:46 3271 355
Доброго дня, господа инженеры!
Есть вопрос по поводу ПО. Мб у кого завалялась таблица сравнения ПО, например Macroscop, Hikvision, Axonsoft и т.д
Заранее благодарю за ответ
Аноним 28/02/21 Вск 15:52:27 3280 356
7ac3e279864b9dc[...].jpg 73Кб, 691x760
691x760
Здорова мужики, хотел бы поинтересоваться у вас, есть ли такой ресурс, где можно фрилансить по чертежам? Сам работаю конструктором в кб при производстве, в свободное время хотелось бы подработать, денег мало платят, перспектив никаких. Хочу наподобие пикрилов чертить что-нибудь не особо заморочистое, 3д модельки там и т.д. Черчу в компасе все это дело. Благодарю.
Аноним 01/03/21 Пнд 02:48:21 3283 357
Ну теперь всё понятно
Аноним 08/03/21 Пнд 15:50:31 3288 358
Как симетрично укоротить деталь в solidworks? У меня есть условный размер 3000мм, надо сделать 2700мм, но solid укорачивает её только с одной стороны, как сделать так, чтобы он по 150мм с двух сторон отрезал?
Аноним 12/03/21 Птн 18:35:26 3291 359
>>3288
тебе нужно резать относительно серединного профиля, посмотри в свойствах, где выбираешь размер выреза
Аноним 27/03/21 Суб 00:01:26 3298 360
>>3280
Определенного форума не встречал, а вот по подработке если цены не гнёшь, то тебе путь прямиком в группы вк различных техникумов. Студентам такая помощь нужна постоянно
Аноним 29/03/21 Пнд 01:59:51 3300 361
>>36 (OP)
есть формула для солида, для конической шестерни, а то я нашел формулу через вырезание в детали, есть ли такая только для наращивания?
Аноним 06/05/21 Чтв 19:14:55 3346 362
nnmB5vevtQ.jpg 152Кб, 1600x1200
1600x1200
Пачаны, как рассчитывается нагрузка на опору? Нужно решить, какую трубу взять под фермы.
Аноним 06/06/21 Вск 03:37:19 3355 363
ADE19CE2-D595-4[...].jpeg 46Кб, 411x492
411x492
EEE19C2F-FBA1-4[...].jpeg 6Кб, 200x200
200x200
Очень срочный вопрос, есть сгон ду 15 с резьбой 1/2", мне нужен внутренний диаметр, как его узнать, не щупая вручную?
Аноним 07/06/21 Пнд 13:32:43 3358 364
>>3355
>ду 15
>мне нужен внутренний диаметр
Дык оно и есть, условный проход не просто так называется. Или с допуском надо? Тогда ГОСТ ищи.
Аноним 09/06/21 Срд 15:03:59 3359 365
Йоу. Ищу того, кто поможет с решением ргр, расчет многопустотных плит покрытия и перекрытия или типа того. Есть примеры решения и методички, я в этом ничего не понимаю. За деревянные, естественно. Можно писать сюда: [email protected]
Аноним 15/06/21 Втр 03:52:29 3360 366
>>3358
По госту нашел из каких гостовских труб делается
Аноним 15/06/21 Втр 16:11:01 3361 367
Люди, пожалуйста, киньте ссылку откуда скачать какой-нить простой AVEVA RVM файлик. Надо потестировать программу.

Умудрился ничего не найти в гугле(
Аноним 06/10/21 Срд 23:36:29 3386 368
Котаны, подскажите, где описан ВЕСЬ объем требуемой документации при производстве изделия? Ну вот, условно, нужно сделать ХУЙ из метала. Чертежи понятно. Что ещё из документации к нему нужно? В каком-то госте прописано это? Где вообще посмотреть все виды документации на изделия из металла?
Аноним 12/10/21 Втр 14:58:07 3387 369
>>3386
Что за хуй? Не в том плане собачий или человечий, а какого размера, лол, и как делать собираешься.
Литой - КД на форму, кокиль, выплавляемую модель или что там у тебя. Плюс если надо - обработка отливки, фрезеровка посадочных поверхностей и монтажных. Нарезка рельбы если надо етц.
Фрезерованный (точёный, лол) - для ЧПУ в чертеже габариты и шероховатость (шершавость в твоём случае), точность по модели, допуски. Для ручной дрочки на универсальном станке - куча сечений и шаблонов.
Сварной - отдельные детали, швы, подготовка, чем варить, термообработка.
Штампованный (тянутый в силу большой длины олтносительно сечения?) - заготовка, матрица, пуансон, как давить.
Кованый - вот тут хуй знает.
Электроэрозия - КД на электрод
Гальваника - заготовка, режимы.

Аноним 03/12/21 Птн 22:31:25 3401 370
Аноним 17/12/21 Птн 18:12:34 3406 371
сап, господа.
объясните несчастному анону, как построить эпюрки в КОМПАСе?или в хоть каком-то софте
Михал Николаич, если Вы тут тоже сидите - помогите пожалуйста
Аноним 22/05/22 Вск 12:40:43 3486 372
image 72Кб, 603x434
603x434
Сап аноны. Как измерить ширину этих двух хреней? Есть штангель, но он туда не лезет
Аноним 23/05/22 Пнд 14:58:32 3487 373
изображение.png 197Кб, 640x640
640x640
изображение.png 5166Кб, 2203x1344
2203x1344
>>3486
Щупом пикрелейтед шейку.
Шупом с торца штангена общую высоту двух хреней - упереть в плоскость той хрени, что не шейка и измерить расстояние до больщой херовины.
Аноним 02/08/22 Втр 21:24:52 3508 374
>>3486
мажешь все силиконовой смазкой, приляпываешь сбоку кусочек холодной сварки, как застынет, отколыпываешь и измеряешь
Аноним 03/08/22 Срд 08:45:28 3509 375
16593839215790.png 1920Кб, 1280x757
1280x757
Господа, не могу найти ОСТ 92-4634-99
Жгуты приборные. Требования к конструированию. В интернете не нашел - Я уже нервный и так все сроки прое. Отправлял запрос знакомым с предприятия города - и у них нету.
Если есть будьте так добры.
Аноним 20/08/22 Суб 12:01:33 3510 376
image.png 600Кб, 800x600
800x600
image.png 1206Кб, 970x970
970x970
>>36 (OP)
ПОМРГИТЕб!!
Хоть и мелкодоска, но вдруг ответят. В общем нужно подключить духовку и варочную плиту. Варочная плита 3 кВт, духовка только планируется. Вроде всё просто - одна фаза. Но можно ли её просто присоединить от случайной линии? Не произойдёт ли какой-нибудь перекос в напряжении? Да и вообще как узнать, сколько у тебя фаз и какая на них нагрузка, если у тебя вообще нет схемы. В помещении вроде ничего кроме лампочек и холодильника нет. Проекта тоже никакого нет. А плиту ставить надо. 3 кВт это вообще много? или фигня - можно ставить, ничего не будет.
Аноним 24/09/22 Суб 15:25:20 3517 377
Сап /ing/. Имеется труба водопроводная 25 мм с толщиной стенки 2,5-2,8 мм. Нужно прочить под подшипник 26 мм на глубину 8 мм. Как это провернуть без токарного станка исключительно ручным/электро инструментом? Без понятия какие там допуски, но жесткой посадки под пресс и не нужно, если подшипник будет легко заходить можно и на клей посадить.
Аноним 28/09/22 Срд 14:17:26 3518 378
>>3510
>Да и вообще как узнать, сколько у тебя фаз
Посмотри сколько проводов на счётчике.

>какая на них нагрузка
Не выше номинала входного автомата. Ну и плюс по сечению проводов посмотри, порядка 5 А/мм2 хорошо, порядка 10 - терпимо

>Но можно ли её просто присоединить от случайной линии?
Лучше отдельным автоматом после пакетника. Двухполюсный, желательно диф. Землю нормальную, а не дубль нуля добавь.

>3 кВт это вообще много?
Две конфорки? 2 кВт одна и 1 кВт вторая - хорошо, две по 1,5 кВт - бессмысленно. Если столешницу ещё не порезал под панель - ставь повёрнутой на 90 градусов относительно твоей картинки с отступом 10-15 см от края. Перед плитой можно будет класть ложки-поварёшки в подставке или тарелке, за неё можно будет отставлять на подставку под горячее ненужное или крышку откладывать. 3000Вт/230В=13А, через автомат на 16 норм. 2,5 квадрата ВВГнг подключай
Аноним 28/09/22 Срд 14:29:02 3519 379
>>3517
Соосность важна?

Пропили в 4-6 местах мм на 10, заколоти подшипник и обвари

Есть вариант рассверлить ступенчатым сверлом с более менее большим шагом (при 4 мм шаге будет 26 на глубине 4-8 и 28 или 32 в зависимости от сверла на 0-4)
Аноним 29/09/22 Чтв 14:08:22 3521 380
>>3519
Соосность не нужна, лишь бы подшипник не приваривать. Спасибо за идею.
Аноним 29/09/22 Чтв 19:50:55 3522 381
images (25).jpg 2Кб, 122x122
122x122
-.jpg 36Кб, 800x800
800x800
>>3517
На стопорный винт попробуй
Аноним 25/10/22 Втр 08:16:32 3529 382
image.png 98Кб, 888x614
888x614
image.png 43Кб, 924x397
924x397
>>36 (OP)

Может кто-нибудь помочь с порошковой металлургией?

Есть график зависимости относительной плотности порошка от давления формования и исходя из него нужно найти то значение давления, при котором формовочная смесь будет держать форму
По идее, это значение на промежутке 0<x<100 МПа, но нужно определить точно, где эта точка на оси абсцисс
Аноним 16/11/22 Срд 20:57:01 3531 383
1668621421562.png 24Кб, 688x243
688x243
Вопрос, блять, сложный, что пиздец.

Крч, есть у меня тело сложной формы в NX. У тела есть координаты на которых оно построено.
Мне нужно из этого тела получить уравнение поверхности этого тела, типо вот такого как на пикриле.
Есть у NX такие возможности? Или может есть какие-то сторонние программы.
Казалось бы очевидный матлаб, но он вроде как не умеет работать с форматами солида, а перестраивать это все я в рот ебал
Аноним 30/11/22 Срд 17:24:18 3532 384
>>3531
>как не умеет работать с форматами солида
STL - > облако точек
Аноним 05/12/22 Пнд 03:49:51 3533 385
Laser Cleaning.mp4 19629Кб, 1280x720, 00:01:03
1280x720
Как этот лазер работает? Почему он удаляет только краску и ржавчину?
Аноним 06/12/22 Втр 18:47:58 3534 386
>>3533
Также как фен и шпатель, только бодрее. Удельная мощность недостаточна, чтобы плавить металл. Теплопроводность металла выше, чес у ЛКП, поэтому краска быстро нагревается, а по железке тепло отводится вглубь. У них наверняка ещё и разные коэффициенты теплового расширения, поэтому при таком градиенте температур возникают достаточные термические напряжения, чтобы краска отскочила. Ну или хуй его знает.
Аноним 12/12/22 Пнд 07:57:29 3537 387
Когда появилась первая технология пескоструйной чистки от краски, ржавчины, всего этого? В СССР такое было?
Аноним 12/12/22 Пнд 08:01:01 3538 388
HEX.mp4 5543Кб, 640x480, 00:01:19
640x480
Это фокус?
Аноним 13/12/22 Втр 19:08:06 3539 389
изображение.png 105Кб, 400x260
400x260
изображение.png 110Кб, 220x319
220x319
>>3537
>The first abrasive blasting process was patented by Benjamin Chew Tilghman on 18 October 1870
Изображение из патента и фото изобретателя (воевал добровольцем в гражданскую, был ранен, дембельнулся полковником цветного полка, но при почётной отставке дали бригадного генерала).
Аноним 13/12/22 Втр 19:09:18 3540 390
>>3538
Это двигатель постоянного тока.
Аноним 14/12/22 Срд 14:00:56 3543 391
118110.mp4 4552Кб, 1280x720, 00:01:16
1280x720
Как эта штука работает?
Аноним 15/12/22 Чтв 20:54:08 3544 392
изображение.png 725Кб, 993x628
993x628
>>3542
У братьев Райт не было штурвала. Подозреваю, что и планере Лилиенталя тоже.

Если речь про однорукое управление, то
>The centre stick originated at the turn of the twentieth century. In 1900, Wilhelm Kress of Austria developed a control stick for aircraft, but did not apply for a patent. Instead, a patent was awarded to the French aviator, Robert Esnault-Pelterie who applied for it in 1907.
Аноним 15/12/22 Чтв 20:56:02 3545 393
>>3543
Видно же, что в гайке нарезана и правая резьба и левая. И явно многозаходная. Чем точили, интересно. Тупо на ЧПУ или токарно-винторезный автомат кругами гоняли.
Аноним 16/12/22 Птн 07:50:31 3546 394
Аноним 16/12/22 Птн 19:58:26 3547 395
>>3546
Ох ты ж блядь, литьё по выплавляемой мастер-модели с 3Д принтера. Что там с точностью, 1-2 десятки или хуже? Зазоры небось нужны, чтоб не закусывало гарантированно, поэтому так бодро и ходят (ну и плюс большой шаг резьбы и малая высота гайки).
Аноним 17/12/22 Суб 17:02:03 3550 396
Аноним 26/12/22 Пнд 15:08:16 3555 397
>>3549
Это-то да, я в хорошем смысле удивился, лол. Интересно ж в какие допуски можно попасть таким макаром и для чего оно пригодно.
Аноним 12/03/23 Вск 03:31:09 3582 398
Кто и где построил первую дорогу с асфальтовым покрытием?
Аноним 24/03/23 Птн 13:08:36 3584 399
>>3582
Ну где нефть хлещет, если палкой в песок ткнуть и болота из битума возможны? Ближний Восток. Так что пусть будут какие-нибудь шумеры Междуречья
Аноним 29/03/23 Срд 10:02:04 3585 400
>>3584
>Ну где нефть хлещет, если палкой в песок ткнуть и болота из битума возможны?
Баку?
Проектирование сварной рамы трицикла Аноним 02/04/23 Вск 20:09:39 3586 401
Нужно для диплома спроектировать сварную раму электромопеда (трицикла). Посоветуйте в какую сторону читать, смотреть, есть ли примеры расчёта подобного где-нибудь? В унике считали только нагрузки для одной балки. Как это перенести на целую раму я не понимаю.
Аноним 12/04/23 Срд 13:02:59 3590 402
>>36 (OP)
Какие книги читать ? Хочу ёмкость с мешалкой спроектировать. Подбор двигателя, расчет подшипников, вала, итд
Аноним 13/04/23 Чтв 22:55:15 3592 403
IMG202304131628[...].jpg 3807Кб, 4624x3472
4624x3472
IMG202304131854[...].jpg 4314Кб, 4624x3472
4624x3472
IMG202304131854[...].jpg 4324Кб, 4624x3472
4624x3472
Подскажите, пожалуйста, что это за поебень? Купил на барахолке за сто рублей, думал, что просто струбцина
Аноним 25/04/23 Втр 11:37:51 3595 404
что не так с инженерами?

вот я с дуру форматнул раздел на телефоне отвечающий за прошивку модема, слетели имеи и связь. в мастерских мне сказали что починить НЕВОЗМОЖНО! То есть на заводе где этот телефон сделали у инженеров достаточно интеллекта чтобы какие-то данные записать на раздел после чего связь работает, а в мастерской нет?

причем на форумах по ремонту такие же горе технари спрашивают ЧТО ДЕЛАТЬ, КЛИЕНТ ПРИНЕС ТЕЛЕФОН, А Я ЛОХ НЕ МОГУ ИМЕИ ВЕРНУТЬ, где им отвечают что это якобы не возможно... то есть сам бог этот телефон сделать звонячим и только он может починить
Аноним 26/04/23 Срд 19:58:00 3597 405
>>3595
Мне при слетании имея тупо сброс до заводских помог.
Аноним 26/04/23 Срд 20:04:26 3598 406
>>3586
Расчёт ферменных конструкций, считай балками. Нагрузки 2 варианта крайних - жопа ездуна давит гравитацией на седло и опора только на подножки (по полвеса). На ездьбу по ухабам возьми коэффициент динамичности 3-4. Закрепление - штаны вилки и подшипник маятника. Амортизаторы не считай, просто подбери. Вари из круглой трубы, старайся, чтобы одна деталь имела гибы только в одной плоскости. Или не имела вовсе.

В качестве изъёба сделай электротрансмиссию или кардан с дифференциалом.
Аноним 27/04/23 Чтв 20:10:46 3600 407
чем занимаются инженеры / учёные связанные с техническими науками?

1 электротехника: компы, телефоны, бытовая электроника
2 преимущественно механическая техника: автомобили, самолеты, корабли
3 строительство: зданий, сооружений, заводов
4 добыча полезных ископаемых и их разведка

что я ещё забыл?

химики это технари? или ближе к биологам? она вроде стоит в один ряд с физикой, математикой и информатикой
Аноним 27/04/23 Чтв 20:32:21 3601 408
5 программисты
Аноним 02/05/23 Втр 12:33:53 3602 409
>>3600
1. Тебе электричество в розетку откуда приходит? Электростанции, подстанции и прочая шляпа с ЛЭП. Электрические машины - двигатели/генераторы. Источники питания на частоты, отличные от 50Гц. Щитовые, релейные защиты.
2. Промышленная техника, станки.
3. Мосты, вышки.

Твоими примерами заняты единицы
Аноним 30/05/23 Втр 07:02:58 3613 410
Устроился птошником в газпром. У них паспорта раскиданы по папкам и называны "1", "сканирование", "паспорт". Как они вообще работают? Как можно что-то найти в этом бардаке?
Настройки X
Ответить в тред X
15000
Добавить файл/ctrl-v
Стикеры X
Избранное / Топ тредов